推奨利用人数
20人~24人
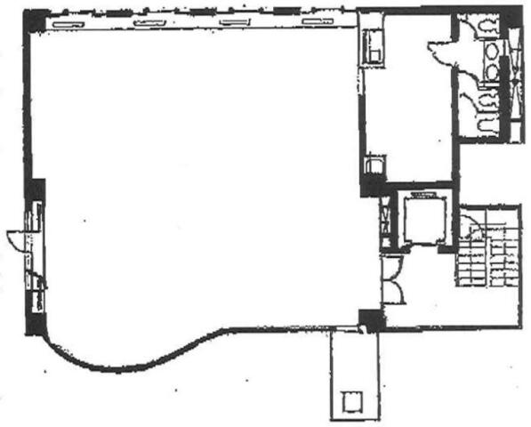
【成約済み】コルティーレ高田馬場 8階
- 所在地:東京都新宿区高田馬場1丁目30番14号
- 交通:JR山手線「高田馬場」駅徒歩4分
- 交通2:東京メトロ副都心線「西早稲田」駅徒歩7分
- 交通3:―
| 賃料:-- (税別) | 管理費:0円 (税別) |
| 敷金:12ヶ月- | 礼金:0ヶ月 |
| 面積:156.23m² | 所在階:地上8階 |
| 間取り:事務所 | 築年月:1992年12月 |
| 賃料/管理費 | -- (税別)/0円 (税別) | フリーレント | 6ヶ月 |
|---|---|---|---|
| 敷金/礼金 | 12ヶ月/0ヶ月 | 内見・入居 | 相談 |
| 間取り | 事務所 | 面積 | 156.23m² |
| 所在階 | 地上8階 | 最大スペース | |
| 住所 | 東京都新宿区高田馬場1丁目30番14号 | 最寄駅 | JR山手線「高田馬場」駅徒歩4分 東京メトロ副都心線「西早稲田」駅徒歩7分 ― |
| その他交通 | 築年月 | 1992年12月 | |
| 方角 | 構造 | 鉄筋コンクリート造(RC造) 9階建 | |
| 契約期間 | 2年間 | 契約形態 | 普通借家 |
| 償却 | 0ヶ月 | 設備 | エレベーター , OAフロア |
| 更新料 | 0ヶ月 | 更新日 | 2025年09月11日 |
| 備考 | |||
| その他費用 | ・フリーレント利用時は、共益費相当@3,000円がかかります | ||



お問い合わせの際は、「部屋No.47879」とお伝えください。





























「コルティーレ高田馬場」は1992年竣工のオフィスビル、グレーの石パネル張りの外観は重厚感があります。新耐震基準をクリアした建物です。
1フロア1テナント利用のオフィスには、男女別のトイレと給湯室があり使い勝手も良好!セキュリティは機械警備完備で安心してご利用いただけます。
周辺は飲食店やおしゃれなカフェなども多くあり、利便性も良好です!