推奨利用人数
30人~39人
【成約済み】東信東池袋ビル 6階
- 所在地:東京都豊島区東池袋5丁目44番15号
- 交通:JR山手線「大塚」駅徒歩5分
- 交通2:東京メトロ丸の内線「新大塚」駅徒歩4分
- 交通3:東京メトロ有楽町線「東池袋」駅徒歩11分
| 賃料:相談 (税別) | 管理費:相談 (税別) |
| 敷金:12ヶ月- | 礼金:0ヶ月 |
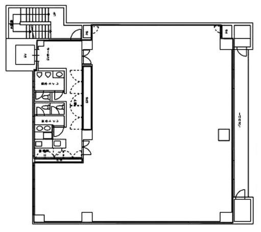
| 面積:251.7m² | 所在階:地上6階 |
| 間取り:事務所 | 築年月:1989年11月 |
| 賃料/管理費 | 相談 (税別)/相談 (税別) | フリーレント | 0ヶ月 |
|---|---|---|---|
| 敷金/礼金 | 12ヶ月/0ヶ月 | 内見・入居 | 内見可 |
| 間取り | 事務所 | 面積 | 251.7m² |
| 所在階 | 地上6階 | 最大スペース | |
| 住所 | 東京都豊島区東池袋5丁目44番15号 | 最寄駅 | JR山手線「大塚」駅徒歩5分 東京メトロ丸の内線「新大塚」駅徒歩4分 東京メトロ有楽町線「東池袋」駅徒歩11分 |
| その他交通 | 築年月 | 1989年11月 | |
| 方角 | 構造 | 鉄骨鉄筋コンクリート造(SRC造) 7階建 | |
| 契約期間 | その他 | 契約形態 | 定期借家 |
| 償却 | 0ヶ月 | 設備 | エレベーター , OAフロア |
| 更新料 | 1ヶ月 | 更新日 | 2025年09月11日 |
| 備考 |
・正面入口 平日・土:8時~19時 日祝日:閉 時間外は通用口よりテンキー操作にて入館可能 |
||
| その他費用 | ・駐車場(機械式):月額35,000円(税別)・敷金1ヶ月 ・袖看板:月額10,000円(税別) |
||



お問い合わせの際は、「部屋No.47881」とお伝えください。





























東信東池袋ビルは1989年竣工のオフィスビル、白いパネル張りの外観の建物です。新耐震基準をクリアしています。
1フロア1テナント利用のオフィス、EVホールに男女別トイレと給湯室がありますので、室内は効率よくレイアウトすることが可能です。セキュリティは機械警備を導入、EVの不停止機能と連動しており安心して24時間利用可能なオフィスです。
周辺は住宅が多く比較的落ち着いたエリアのオフィスです。