推奨利用人数
20人~24人
【成約済み】銀座松良ビル 2階
- 所在地:東京都中央区銀座7丁目17番8号
- 交通:都営大江戸線「築地市場」駅徒歩3分
- 交通2:東京メトロ日比谷線「東銀座」駅徒歩8分
- 交通3:JR山手線「新橋」駅徒歩12分
| 賃料:-- (税別) | 管理費:162,610円 (税別) |
| 敷金:6ヶ月- | 礼金:0ヶ月 |
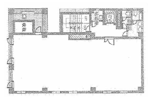
| 面積:153.59m² | 所在階:地上2階 |
| 間取り:事務所 | 築年月:1988年06月 |
| 賃料/管理費 | -- (税別)/162,610円 (税別) | フリーレント | 0ヶ月 |
|---|---|---|---|
| 敷金/礼金 | 6ヶ月/0ヶ月 | 内見・入居 | 相談 |
| 間取り | 事務所 | 面積 | 153.59m² |
| 所在階 | 地上2階 | 最大スペース | |
| 住所 | 東京都中央区銀座7丁目17番8号 | 最寄駅 | 都営大江戸線「築地市場」駅徒歩3分 東京メトロ日比谷線「東銀座」駅徒歩8分 JR山手線「新橋」駅徒歩12分 |
| その他交通 | 築年月 | 1988年06月 | |
| 方角 | 構造 | 鉄筋コンクリート造(RC造) 7階建 | |
| 契約期間 | その他 | 契約形態 | |
| 償却 | 0ヶ月 | 設備 | エレベーター , OAフロア |
| 更新料 | 1ヶ月 | 更新日 | 2025年09月11日 |
| 備考 | |||



お問い合わせの際は、「部屋No.47893」とお伝えください。





























銀座松良ビルは1988年竣工のオフィスビル、シルバーの外壁に赤いラインのアクセントが個性的な建物です。2014年に外装や水回りのリニューアルを施しています。
1フロア1テナント利用のオフィス、通りに面し大きな窓があり採光性も期待できます。EVホールにトイレと給湯室がありますので、室内は効率よくレイアウトが可能です。
周辺は飲食店の多いエリア、建物1階にも飲食店があります。