推奨利用人数
40人以上
【成約済み】高島屋THビル北館(旧:高島屋グループ本社第3ビル・ムツミビルヂング) 3階
- 所在地:東京都中央区日本橋2丁目12番6号
- 交通:東京メトロ東西線「日本橋」駅徒歩2分
- 交通2:JR山手線「東京」駅徒歩6分
- 交通3:東京メトロ日比谷線「茅場町」駅徒歩4分
| 賃料:-- (税別) | 管理費:238,920円 (税別) |
| 敷金:12ヶ月- | 礼金:0ヶ月 |
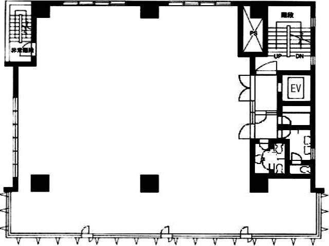
| 面積:263.27m² | 所在階:地上3階 |
| 間取り:事務所 | 築年月:1977年11月 |
| 賃料/管理費 | -- (税別)/238,920円 (税別) | フリーレント | 0ヶ月 |
|---|---|---|---|
| 敷金/礼金 | 12ヶ月/0ヶ月 | 内見・入居 | 内見可 |
| 間取り | 事務所 | 面積 | 263.27m² |
| 所在階 | 地上3階 | 最大スペース | |
| 住所 | 東京都中央区日本橋2丁目12番6号 | 最寄駅 | 東京メトロ東西線「日本橋」駅徒歩2分 JR山手線「東京」駅徒歩6分 東京メトロ日比谷線「茅場町」駅徒歩4分 |
| その他交通 | 築年月 | 1977年11月 | |
| 方角 | 構造 | 鉄骨鉄筋コンクリート造(SRC造) 10階建 | |
| 契約期間 | 5年間 | 契約形態 | 定期借家 |
| 償却 | 2ヶ月 | 設備 | エレベーター |
| 更新料 | 1ヶ月 | 更新日 | 2025年09月11日 |
| 備考 | |||



お問い合わせの際は、「部屋No.47897」とお伝えください。





























1977年竣工のオフィスビル、茶色の外壁と大きな窓が印象的な建物です。
基準となるオフィスは約55坪、各フロアに男女別のトイレと給湯室があります。セキュリティは機械警備と有人警備併用で安心です。
ビル内に貸会議室や駐車場施設がありますので便利です。
最寄の日本橋駅からは徒歩2分の距離、東京駅までも徒歩10分以内で利用可能ですのでアクセス便利な立地です。