推奨利用人数
11人~12人
【成約済み】WORK BASE Nihombashi(旧称:STHビル) 7階
- 所在地:東京都中央区日本橋2丁目16番4号
- 交通:東京メトロ銀座線「日本橋」駅徒歩3分
- 交通2:東京メトロ日比谷線「茅場町」駅徒歩6分
- 交通3:JR山手線「東京」駅徒歩7分
| 賃料:相談 (税別) | 管理費:相談 (税別) |
| 敷金:6ヶ月- | 礼金:0ヶ月 |
| 面積:72.96m² | 所在階:地上7階 |
| 間取り:事務所 | 築年月:1993年04月 |
| 賃料/管理費 | 相談 (税別)/相談 (税別) | フリーレント | 0ヶ月 |
|---|---|---|---|
| 敷金/礼金 | 6ヶ月/0ヶ月 | 内見・入居 | 相談 |
| 間取り | 事務所 | 面積 | 72.96m² |
| 所在階 | 地上7階 | 最大スペース | |
| 住所 | 東京都中央区日本橋2丁目16番4号 | 最寄駅 | 東京メトロ銀座線「日本橋」駅徒歩3分 東京メトロ日比谷線「茅場町」駅徒歩6分 JR山手線「東京」駅徒歩7分 |
| その他交通 | 都営浅草線「宝町」駅7分 | 築年月 | 1993年04月 |
| 方角 | 構造 | 鉄骨構造(S造) 9階建 | |
| 契約期間 | 応相談 | 契約形態 | 普通借家 |
| 償却 | 0ヶ月 | 設備 | エレベーター , OAフロア |
| 更新料 | 0ヶ月 | 更新日 | 2025年09月11日 |
| 備考 | |||



お問い合わせの際は、「部屋No.47899」とお伝えください。





























1993年竣工のオフィスビル、新耐震基準をクリアした建物です。2018年7月、大規模リニューアル工事を実施!
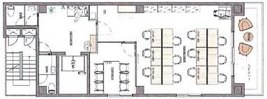
1フロア1テナント利用のオフィスは、基準階23坪ほどとコンパクト。男女別トイレ、受付、会議室を、屋上にはテラスを設置、より使いやすく機能的に生まれ変わりました。
セキュリティは機械警備を導入し24時間いつでもご利用可能です。
最寄駅の日本橋駅から徒歩3分の距離!永代通りから少し入った場所に立地していますので、比較的落ち着いた周辺環境です。