推奨利用人数
40人以上
【成約済み】東京セントラルプレイス(旧称:マルカ日甲ビル) 5階
- 所在地:東京都中央区日本橋兜町22番6号
- 交通:東京メトロ日比谷線「八丁堀」駅徒歩4分
- 交通2:JR山手線「東京」駅徒歩6分
- 交通3:東京メトロ銀座線「日本橋」駅徒歩6分
| 賃料:相談 (税別) | 管理費:相談 (税別) |
| 敷金:相談- | 礼金:0ヶ月 |
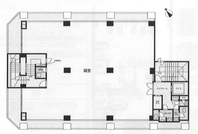
| 面積:269.32m² | 所在階:地上5階 |
| 間取り:事務所 | 築年月:1983年10月 |
| 賃料/管理費 | 相談 (税別)/相談 (税別) | フリーレント | 0ヶ月 |
|---|---|---|---|
| 敷金/礼金 | 相談/0ヶ月 | 内見・入居 | 内見可 |
| 間取り | 事務所 | 面積 | 269.32m² |
| 所在階 | 地上5階 | 最大スペース | |
| 住所 | 東京都中央区日本橋兜町22番6号 | 最寄駅 | 東京メトロ日比谷線「八丁堀」駅徒歩4分 JR山手線「東京」駅徒歩6分 東京メトロ銀座線「日本橋」駅徒歩6分 |
| その他交通 | 築年月 | 1983年10月 | |
| 方角 | 構造 | 鉄筋コンクリート造(RC造) 6階建 | |
| 契約期間 | 応相談 | 契約形態 | 普通借家 |
| 償却 | 0ヶ月 | 設備 | エレベーター , OAフロア |
| 更新料 | 0ヶ月 | 更新日 | 2025年09月11日 |
| 備考 | |||



お問い合わせの際は、「部屋No.47935」とお伝えください。





























1983年竣工、白いタイル張りの外観、角地に立地する新耐震基準に適した賃貸オフィスです。
2019年5月下旬、貸室内リニューアル工事を実施いたしました。
1フロア1テナント利用、室内にあらかじめ受付や会議室など造作し、利便性とデザイン性を高めたオフィスへとリニューアル。
セキュリティは機械警備を完備、安心してご利用いただけます。
複数路線利用可能で交通アクセスも良好。周辺は中低層のオフィスが並ぶ比較的落ち着いたエリア。
東京の玄関口「東京駅」まで徒歩6分と利便性も良好です!