推奨利用人数
15人~19人
【成約済み】銀座龍櫻閣ビル 5階
- 所在地:東京都中央区銀座7丁目5番19号
- 交通:東京メトロ銀座線「銀座」駅徒歩3分
- 交通2:JR山手線「新橋」駅徒歩6分
- 交通3:東京メトロ有楽町線「有楽町」駅徒歩7分
| 賃料:-- (税別) | 管理費:94,170円 (税別) |
| 敷金:10ヶ月- | 礼金:0ヶ月 |
| 面積:103.77m² | 所在階:地上5階 |
| 間取り:事務所 | 築年月:2013年01月 |
| 賃料/管理費 | -- (税別)/94,170円 (税別) | フリーレント | 0ヶ月 |
|---|---|---|---|
| 敷金/礼金 | 10ヶ月/0ヶ月 | 内見・入居 | 内見可 |
| 間取り | 事務所 | 面積 | 103.77m² |
| 所在階 | 地上5階 | 最大スペース | |
| 住所 | 東京都中央区銀座7丁目5番19号 | 最寄駅 | 東京メトロ銀座線「銀座」駅徒歩3分 JR山手線「新橋」駅徒歩6分 東京メトロ有楽町線「有楽町」駅徒歩7分 |
| その他交通 | 東京メトロ有楽町線「有楽町」駅徒歩7分 | 築年月 | 2013年01月 |
| 方角 | 構造 | 鉄骨鉄筋コンクリート造(SRC造) 8階建 | |
| 契約期間 | 3年間 | 契約形態 | 定期借家 |
| 償却 | 0ヶ月 | 設備 | エレベーター , OAフロア |
| 更新料 | 0ヶ月 | 更新日 | 2025年09月11日 |
| 備考 | |||
| その他費用 | ・指定保証会社加入必須 | ||



お問い合わせの際は、「部屋No.47966」とお伝えください。





























「銀座龍櫻閣ビル」は2013年竣工のオフィスビル、薄い茶色の石張りの外観の建物です。新耐震基準をクリアしています。
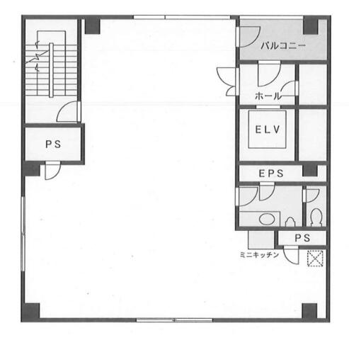
オフィスフロアは、1フロア1テナント利用、室内にトイレと給湯があります。余計な柱がありませんので、レイアウトしやすい間取りです。
セキュリティは機械警備を完備し、安心してご利用いただけます。
外堀通りから1本入った場所に立地しており、周辺は比較的落ち着いた環境です。通り沿いは飲食店や大型商業施設が並ぶ華やかなエリアで利便性も良好です。