推奨利用人数
20人~24人
【成約済み】野依ビル 4階
- 所在地:東京都港区芝大門1丁目2番18号
- 交通:都営大江戸線「大門」駅徒歩5分
- 交通2:都営三田線「御成門」駅徒歩6分
- 交通3:JR山手線「浜松町」駅徒歩9分
| 賃料:-- (税別) | 管理費:0円 (税別) |
| 敷金:4ヶ月- | 礼金:0ヶ月 |
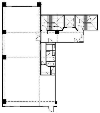
| 面積:160.42m² | 所在階:地上4階 |
| 間取り:事務所 | 築年月:1988年12月 |
| 賃料/管理費 | -- (税別)/0円 (税別) | フリーレント | 0ヶ月 |
|---|---|---|---|
| 敷金/礼金 | 4ヶ月/0ヶ月 | 内見・入居 | 相談 |
| 間取り | 事務所 | 面積 | 160.42m² |
| 所在階 | 地上4階 | 最大スペース | |
| 住所 | 東京都港区芝大門1丁目2番18号 | 最寄駅 | 都営大江戸線「大門」駅徒歩5分 都営三田線「御成門」駅徒歩6分 JR山手線「浜松町」駅徒歩9分 |
| その他交通 | 築年月 | 1988年12月 | |
| 方角 | 構造 | 鉄骨鉄筋コンクリート造(SRC造) 5階建 | |
| 契約期間 | 2年間 | 契約形態 | 普通借家 |
| 償却 | 0ヶ月 | 設備 | エレベーター |
| 更新料 | 0ヶ月 | 更新日 | 2025年09月11日 |
| 備考 | |||



お問い合わせの際は、「部屋No.48000」とお伝えください。





























複数路線利用可能で交通アクセス良好
周辺には銀行、郵便局、コンビニがあり便利。
エアコン2台以上、光ファイバー、24時間セキュリティーなど充実の設備です。