推奨利用人数
15人~19人
【成約済み】東京戸張ビル 3階
- 所在地:東京都港区浜松町1丁目17番6号
- 交通:JR山手線「浜松町」駅徒歩3分
- 交通2:都営大江戸線「大門」駅徒歩3分
- 交通3:都営三田線「御成門」駅徒歩7分
| 賃料:-- (税別) | 管理費:0円 (税別) |
| 敷金:5ヶ月- | 礼金:0ヶ月 |
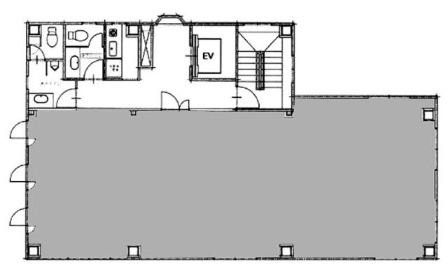
| 面積:107.11m² | 所在階:地上3階 |
| 間取り:事務所 | 築年月:2002年11月 |
| 賃料/管理費 | -- (税別)/0円 (税別) | フリーレント | 0ヶ月 |
|---|---|---|---|
| 敷金/礼金 | 5ヶ月/0ヶ月 | 内見・入居 | 内見可 |
| 間取り | 事務所 | 面積 | 107.11m² |
| 所在階 | 地上3階 | 最大スペース | |
| 住所 | 東京都港区浜松町1丁目17番6号 | 最寄駅 | JR山手線「浜松町」駅徒歩3分 都営大江戸線「大門」駅徒歩3分 都営三田線「御成門」駅徒歩7分 |
| その他交通 | 築年月 | 2002年11月 | |
| 方角 | 構造 | 鉄骨構造(S造) 6階建 | |
| 契約期間 | その他 | 契約形態 | |
| 償却 | 1ヶ月 | 設備 | エレベーター , OAフロア |
| 更新料 | 1ヶ月 | 更新日 | 2025年09月11日 |
| 備考 |
・警備カード:3枚無料 ※追加は有料となります。 ・エントランス開閉時間:平日8:00-19:00 土日祝 閉 ※上記時間帯以外はセキュリティーカード利用により24時間入退館可能。 |
||



お問い合わせの際は、「部屋No.48021」とお伝えください。





























東京戸張ビルは2002年竣工のオフィスビル。薄い茶系のタイル張りの外観、新耐震基準をクリアした建物です。
1フロア1テナント利用のオフィスには、EVホールに給湯室と男女別トイレが配されており、室内は効率よくレイアウト可能です。機械警備を導入し、安心してご利用いただけます。
周辺は駅近でありながら、住宅やオフィスが並ぶ比較的落ち着いたエリア。通りに出れば飲食店も多く便利な立地です。