推奨利用人数
7人~8人
【成約済み】ACN京橋ビル 801号室
- 所在地:東京都中央区京橋2丁目12番9号
- 交通:都営浅草線「宝町」駅徒歩1分
- 交通2:東京メトロ銀座線「京橋」駅徒歩2分
- 交通3:JR山手線「東京」駅徒歩9分
| 賃料:-- (税別) | 管理費:0円 (税別) |
| 敷金:8ヶ月- | 礼金:0ヶ月 |
| 面積:50.74m² | 所在階:地上8階 |
| 間取り:事務所 | 築年月:2015年01月 |
| 賃料/管理費 | -- (税別)/0円 (税別) | フリーレント | 0ヶ月 |
|---|---|---|---|
| 敷金/礼金 | 8ヶ月/0ヶ月 | 内見・入居 | 内見可 |
| 間取り | 事務所 | 面積 | 50.74m² |
| 所在階 | 地上8階 | 最大スペース | |
| 住所 | 東京都中央区京橋2丁目12番9号 | 最寄駅 | 都営浅草線「宝町」駅徒歩1分 東京メトロ銀座線「京橋」駅徒歩2分 JR山手線「東京」駅徒歩9分 |
| その他交通 | 築年月 | 2015年01月 | |
| 方角 | 構造 | 鉄骨構造(S造) 12階建 | |
| 契約期間 | 2年間 | 契約形態 | 普通借家 |
| 償却 | 1ヶ月 | 設備 | エレベーター , OAフロア |
| 更新料 | 1ヶ月 | 更新日 | 2025年09月11日 |
| 備考 | |||
| その他費用 | ・原則保証会社利用要 | ||



お問い合わせの際は、「部屋No.48025」とお伝えください。





























2015年竣工の築浅オフィスビル、ガラスカーテンウォールの外観は視認性良好!
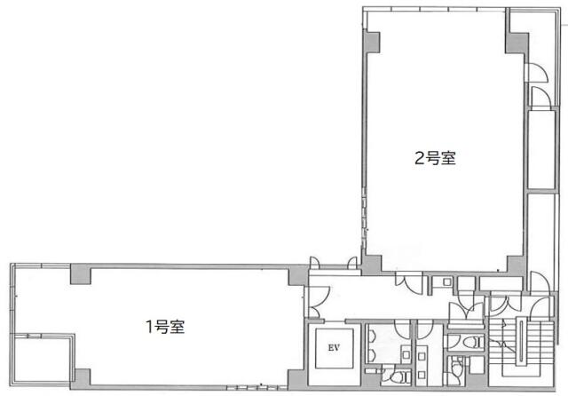
ビルの形状はL字型で正面エントランスは「宝町」駅A5出口目の前です。東京駅や丸の内周辺、銀座エリアも近く、ビジネスの拠点としてアクセスの良さもお勧めのポイントです。
オフィスフロアは、共用部に男女別のトイレと給湯設備があり、貸室内は効率よくレイアウトすることが可能です。
セキュリティは機械警備とオートロック併用で安心してご利用いただけます。