推奨利用人数
9人~10人
【成約済み】百人町秋山ビル 3階
- 所在地:東京都新宿区百人町1丁目18番11号
- 交通:JR中央線「大久保」駅徒歩1分
- 交通2:JR山手線「新大久保」駅徒歩5分
- 交通3:都営大江戸線「東新宿」駅徒歩14分
| 賃料:-- (税別) | 管理費:35,186円 (税別) |
| 敷金:4ヶ月- | 礼金:2ヶ月 |
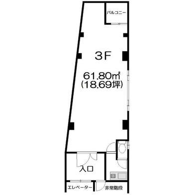
| 面積:61.8m² | 所在階:地上3階 |
| 間取り:事務所 | 築年月:1993年07月 |
| 賃料/管理費 | -- (税別)/35,186円 (税別) | フリーレント | 0ヶ月 |
|---|---|---|---|
| 敷金/礼金 | 4ヶ月/2ヶ月 | 内見・入居 | |
| 間取り | 事務所 | 面積 | 61.8m² |
| 所在階 | 地上3階 | 最大スペース | |
| 住所 | 東京都新宿区百人町1丁目18番11号 | 最寄駅 | JR中央線「大久保」駅徒歩1分 JR山手線「新大久保」駅徒歩5分 都営大江戸線「東新宿」駅徒歩14分 |
| その他交通 | 築年月 | 1993年07月 | |
| 方角 | 構造 | 鉄骨構造(S造) 7階建 | |
| 契約期間 | 2年間 | 契約形態 | 普通借家 |
| 償却 | 0ヶ月 | 設備 | エレベーター |
| 更新料 | 1ヶ月 | 更新日 | 2025年09月11日 |
| 備考 |
・飲食店舗不可 ・エントランス開閉時間:全日8:30~20:30 ※左記時間帯以外は入退館不可 |
||
| その他費用 | ・貸主指定の保証会社と保証委託契約を締結していただきます。 | ||



お問い合わせの際は、「部屋No.48054」とお伝えください。





























「百人町秋山ビル」は1993年竣工のオフィスビル。茶色のパネル張りの外観の建物です。新耐震基準をクリアしています。
コンパクトな1フロア1テナント利用のオフィスは、室内にミニキッチンとトイレがあり、使い勝手も良好です。
大久保通りに面しており、視認性も高いので店舗としてのご利用も相談可能です!
周辺は金融機関や郵便局、飲食店やコンビニなどもあり利便性も良好です!