推奨利用人数
15人~19人
【成約済み】KIビル(中野) 10階
- 所在地:東京都中野区中央4丁目1番2号
- 交通:東京メトロ丸の内線「新中野」駅徒歩1分
- 交通2:JR中央・総武線「中野」駅徒歩13分
- 交通3:東京メトロ丸の内線「中野新橋」駅徒歩7分
| 賃料:-- (税別) | 管理費:58,320円 (税別) |
| 敷金:6ヶ月- | 礼金:0ヶ月 |
| 面積:128.54m² | 所在階:地上10階 |
| 間取り:事務所 | 築年月:1992年03月 |
| 賃料/管理費 | -- (税別)/58,320円 (税別) | フリーレント | 0ヶ月 |
|---|---|---|---|
| 敷金/礼金 | 6ヶ月/0ヶ月 | 内見・入居 | 相談 |
| 間取り | 事務所 | 面積 | 128.54m² |
| 所在階 | 地上10階 | 最大スペース | |
| 住所 | 東京都中野区中央4丁目1番2号 | 最寄駅 | 東京メトロ丸の内線「新中野」駅徒歩1分 JR中央・総武線「中野」駅徒歩13分 東京メトロ丸の内線「中野新橋」駅徒歩7分 |
| その他交通 | 築年月 | 1992年03月 | |
| 方角 | 構造 | 鉄骨構造(S造) 6階建 | |
| 契約期間 | 3年間 | 契約形態 | 普通借家 |
| 償却 | 1ヶ月 | 設備 | エレベーター |
| 更新料 | 1ヶ月 | 更新日 | 2025年09月11日 |
| 備考 | |||
| その他費用 | ・光熱費:使用量に応じて請求 | ||



お問い合わせの際は、「部屋No.48062」とお伝えください。





























「KIビル」は1992年竣工の建物、新耐震基準をクリアしています。前面ガラス張りの存在感のある建物です。青梅街道沿いに立地していて、下階にはファミリーレストランが入店していますので視認性も良好です!
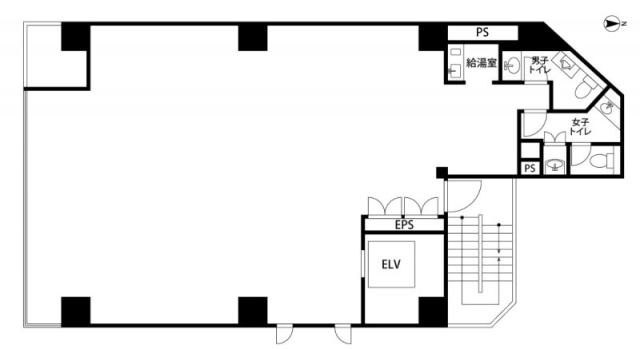
フロアは1フロア1テナント利用、男女別トイレと給湯が設置されています。
周辺は飲食店や金融機関。コンビニなど充実した便利なエリアです。