推奨利用人数
25人~29人
【成約済み】第38荒井ビル 3階
- 所在地:東京都港区浜松町2丁目7番1号
- 交通:JR山手線「浜松町」駅徒歩2分
- 交通2:都営大江戸線「大門」駅徒歩2分
- 交通3:都営三田線「芝公園」駅徒歩5分
| 賃料:相談 (税別) | 管理費:相談 (税別) |
| 敷金:12ヶ月- | 礼金:0ヶ月 |
| 面積:167.14m² | 所在階:地上3階 |
| 間取り:事務所 | 築年月:1990年09月 |
| 賃料/管理費 | 相談 (税別)/相談 (税別) | フリーレント | 0ヶ月 |
|---|---|---|---|
| 敷金/礼金 | 12ヶ月/0ヶ月 | 内見・入居 | 相談 |
| 間取り | 事務所 | 面積 | 167.14m² |
| 所在階 | 地上3階 | 最大スペース | |
| 住所 | 東京都港区浜松町2丁目7番1号 | 最寄駅 | JR山手線「浜松町」駅徒歩2分 都営大江戸線「大門」駅徒歩2分 都営三田線「芝公園」駅徒歩5分 |
| その他交通 | 築年月 | 1990年09月 | |
| 方角 | 構造 | 鉄骨鉄筋コンクリート造(SRC造) 9階建 | |
| 契約期間 | 2年間 | 契約形態 | 普通借家 |
| 償却 | 0ヶ月 | 設備 | エレベーター , OAフロア |
| 更新料 | 0ヶ月 | 更新日 | 2025年09月11日 |
| 備考 | |||



お問い合わせの際は、「部屋No.48134」とお伝えください。





























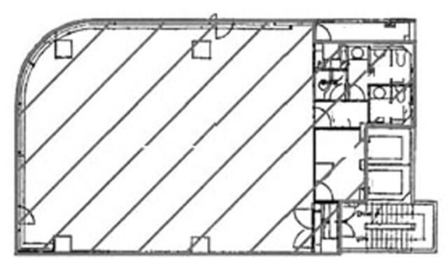
第38荒井ビルは1990年竣工の賃貸オフィス、美しいガラス張りの視認性の高い建物です。1階には牛丼チェーン店が入店していますので目印にもなります。新耐震基準をクリアした建物です。
基準となるオフィスは約50坪、1フロア1テナント利用で、EVホールに男女別のトイレと給湯室が完備されており、室内は効率よくレイアウトすることができます。
エレベーターは2基設置。セキュリティは機械警備システムを導入していますので安心です。
周辺は飲食店の多く、銀行や郵便局も至近、ビジネスに便利な施設が揃った好立地です!