推奨利用人数
40人以上
【成約済み】神田21ビル 3階
- 所在地:東京都千代田区神田多町2丁目2番
- 交通:JR山手線「神田」駅徒歩2分
- 交通2:都営新宿線「小川町」駅徒歩6分
- 交通3:東京メトロ丸の内線「淡路町」駅徒歩6分
| 賃料:相談 (税別) | 管理費:相談 (税別) |
| 敷金:12ヶ月- | 礼金:0ヶ月 |
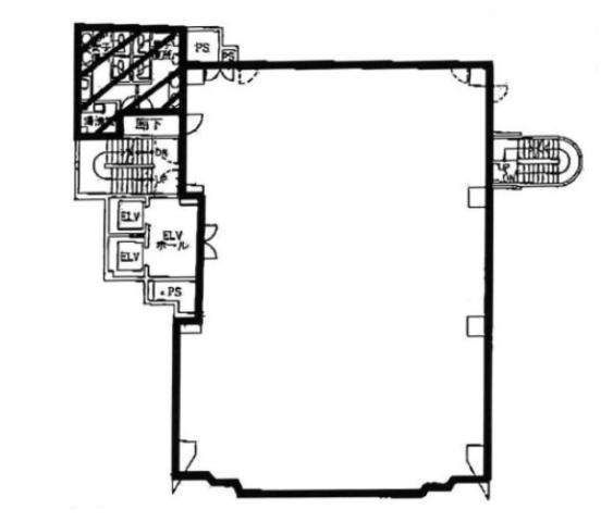
| 面積:325.47m² | 所在階:地上3階 |
| 間取り:事務所 | 築年月:1988年10月 |
| 賃料/管理費 | 相談 (税別)/相談 (税別) | フリーレント | 0ヶ月 |
|---|---|---|---|
| 敷金/礼金 | 12ヶ月/0ヶ月 | 内見・入居 | |
| 間取り | 事務所 | 面積 | 325.47m² |
| 所在階 | 地上3階 | 最大スペース | |
| 住所 | 東京都千代田区神田多町2丁目2番 | 最寄駅 | JR山手線「神田」駅徒歩2分 都営新宿線「小川町」駅徒歩6分 東京メトロ丸の内線「淡路町」駅徒歩6分 |
| その他交通 | 築年月 | 1988年10月 | |
| 方角 | 構造 | 鉄骨鉄筋コンクリート造(SRC造) 8階建 | |
| 契約期間 | 2年間 | 契約形態 | 普通借家 |
| 償却 | 0ヶ月 | 設備 | エレベーター , OAフロア |
| 更新料 | 0ヶ月 | 更新日 | 2025年09月11日 |
| 備考 | |||



お問い合わせの際は、「部屋No.48136」とお伝えください。





























神田21ビルは1988年竣工のオフィス、ミラーガラス張りの外観で築年数を感じさせません。新耐震基準をクリアした建物です。
1フロア1テナント利用のオフィスは、EV2基、男女別トイレと給湯室が室外にあり、柱のない室内は効率よくレイアウトすることが可能です。
周辺にはコンビニやカフェがあり、徒歩2分の神田駅周辺の豊富な飲食店を利用できる便利な立地です。