推奨利用人数
15人~19人
【成約済み】赤坂江戸清ビル 3階
- 所在地:東京都港区赤坂7丁目10番8号
- 交通:東京メトロ千代田線「赤坂」駅徒歩4分
- 交通2:東京メトロ日比谷線「六本木」駅徒歩9分
- 交通3:東京メトロ千代田線「乃木坂」駅徒歩6分
| 賃料:-- (税別) | 管理費:0円 (税別) |
| 敷金:3ヶ月- | 礼金:1ヶ月 |
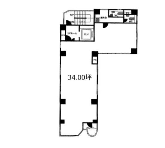
| 面積:112.4m² | 所在階:地上3階 |
| 間取り:事務所 | 築年月:1988年01月 |
| 賃料/管理費 | -- (税別)/0円 (税別) | フリーレント | 0ヶ月 |
|---|---|---|---|
| 敷金/礼金 | 3ヶ月/1ヶ月 | 内見・入居 | 内見可 |
| 間取り | 事務所 | 面積 | 112.4m² |
| 所在階 | 地上3階 | 最大スペース | |
| 住所 | 東京都港区赤坂7丁目10番8号 | 最寄駅 | 東京メトロ千代田線「赤坂」駅徒歩4分 東京メトロ日比谷線「六本木」駅徒歩9分 東京メトロ千代田線「乃木坂」駅徒歩6分 |
| その他交通 | 東京メトロ銀座線「青山一丁目」駅12分 | 築年月 | 1988年01月 |
| 方角 | 構造 | 鉄骨鉄筋コンクリート造(SRC造) 8階建 | |
| 契約期間 | 2年間 | 契約形態 | |
| 償却 | 0ヶ月 | 設備 | エレベーター |
| 更新料 | 1ヶ月 | 更新日 | 2025年09月11日 |
| 備考 | |||



お問い合わせの際は、「部屋No.48200」とお伝えください。





























1988年竣工のオフィスビル、新耐震基準をクリアした建物です。茶色の外観に、クリーム色のバルコニーがおしゃれな印象の建物です。
1フロア1テナント利用、L字型の間取りで室内にはトイレと給湯室が設けられており使い勝手も良好です。
夜間はオートロックでセキュリティ面も安心です。
赤坂駅周辺は飲食店やコンビニが充実していて便利な環境です!