推奨利用人数
20人~24人
高浦ビル 5階
- 所在地:東京都港区芝2丁目29番11号
- 交通:都営三田線「三田」駅徒歩5分
- 交通2:JR山手線「田町」駅徒歩10分
- 交通3:ゆりかもめ「日の出」駅徒歩10分
| 賃料:458,040円 (税別) | 管理費:104,100円 (税別) |
| 敷金:相談- | 礼金:1ヶ月 |
| 面積:137.65m² | 所在階:地上5階 |
| 間取り:事務所 | 築年月:1987年02月 |
| 賃料/管理費 | 458,040円 (税別)/104,100円 (税別) | フリーレント | 0ヶ月 |
|---|---|---|---|
| 敷金/礼金 | 相談/1ヶ月 | 内見・入居 | 内見可 |
| 間取り | 事務所 | 面積 | 137.65m² |
| 所在階 | 地上5階 | 最大スペース | |
| 住所 | 東京都港区芝2丁目29番11号 | 最寄駅 | 都営三田線「三田」駅徒歩5分 JR山手線「田町」駅徒歩10分 ゆりかもめ「日の出」駅徒歩10分 |
| その他交通 | 築年月 | 1987年02月 | |
| 方角 | 構造 | 鉄筋コンクリート造(RC造) 9階建 | |
| 契約期間 | 2年間 | 契約形態 | 普通借家 |
| 償却 | 0ヶ月 | 設備 | エレベーター , OAフロア |
| 更新料 | 0ヶ月 | 更新日 | 2025年09月11日 |
| 備考 | |||



お問い合わせの際は、「部屋No.48219」とお伝えください。





























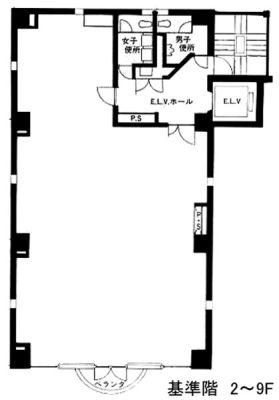
1987年竣工の「高浦ビル」は、丸いバルコニーが印象的な建物、新耐震基準をクリアしています。
基準となるオフィスは約42坪、1フロア1テナント利用でEVホールに男女別トイレがあり、室内は余計な柱もありませんのでレイアウトのしやすい間取りです。
セキュリティは機械警備を完備しておりますので安心してご利用いただけます。
第一京浜沿い「芝4丁目交差点」すぐそばに立地していますのでお客様にもご案内しやすい立地です。周辺には印象店も多く利便性も良好です。