推奨利用人数
5人~6人
【成約済み】TBSビル 3階
- 所在地:東京都千代田区神田三崎町2丁目15番2号
- 交通:JR中央・総武線「水道橋」駅徒歩2分
- 交通2:東京メトロ半蔵門線「神保町」駅徒歩10分
- 交通3:東京メトロ東西線「飯田橋」駅徒歩11分
| 賃料:-- (税別) | 管理費:15,044円 (税別) |
| 敷金:4ヶ月- | 礼金:0ヶ月 |
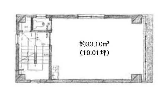
| 面積:33.1m² | 所在階:地上3階 |
| 間取り:事務所 | 築年月:1987年05月 |
| 賃料/管理費 | -- (税別)/15,044円 (税別) | フリーレント | 0ヶ月 |
|---|---|---|---|
| 敷金/礼金 | 4ヶ月/0ヶ月 | 内見・入居 | |
| 間取り | 事務所 | 面積 | 33.1m² |
| 所在階 | 地上3階 | 最大スペース | |
| 住所 | 東京都千代田区神田三崎町2丁目15番2号 | 最寄駅 | JR中央・総武線「水道橋」駅徒歩2分 東京メトロ半蔵門線「神保町」駅徒歩10分 東京メトロ東西線「飯田橋」駅徒歩11分 |
| その他交通 | 築年月 | 1987年05月 | |
| 方角 | 構造 | 鉄筋コンクリート造(RC造) 5階建 | |
| 契約期間 | 2年間 | 契約形態 | 普通借家 |
| 償却 | 2ヶ月 | 設備 | |
| 更新料 | 1ヶ月 | 更新日 | 2025年09月11日 |
| 備考 | |||
| その他費用 | ・更新事務手数料は新賃料0.25ヶ月分 | ||



お問い合わせの際は、「部屋No.48228」とお伝えください。





























新耐震基準の賃貸オフィスビルです
複数路線利用可能で交通アクセス良好
周辺にはコンビニや飲食店が多数あるので、ランチにも便利です。