推奨利用人数
9人~10人
【成約済み】番町MKビル(四番町ハイツ) 302号室
- 所在地:東京都千代田区四番町3番10号
- 交通:都営新宿線「市ケ谷」駅徒歩4分
- 交通2:東京メトロ半蔵門線「半蔵門」駅徒歩6分
- 交通3:東京メトロ有楽町線「麹町」駅徒歩7分
| 賃料:-- (税別) | 管理費:0円 (税別) |
| 敷金:2ヶ月- | 礼金:1ヶ月 |
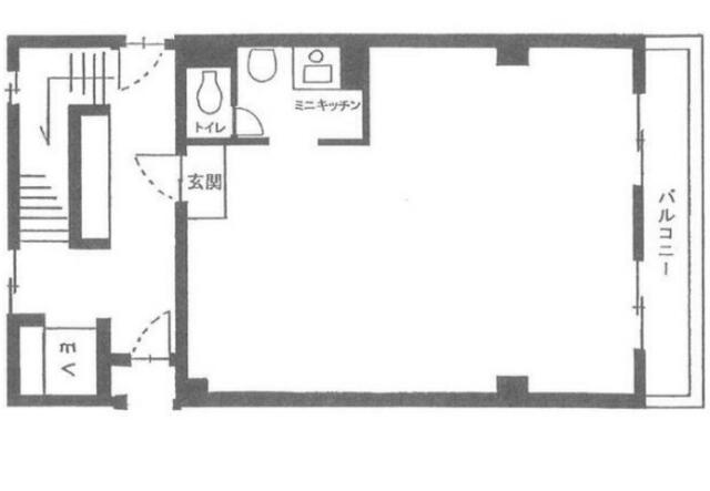
| 面積:56.45m² | 所在階:地上3階 |
| 間取り:事務所 | 築年月:1978年03月 |
| 賃料/管理費 | -- (税別)/0円 (税別) | フリーレント | 0ヶ月 |
|---|---|---|---|
| 敷金/礼金 | 2ヶ月/1ヶ月 | 内見・入居 | 内見可 |
| 間取り | 事務所 | 面積 | 56.45m² |
| 所在階 | 地上3階 | 最大スペース | |
| 住所 | 東京都千代田区四番町3番10号 | 最寄駅 | 都営新宿線「市ケ谷」駅徒歩4分 東京メトロ半蔵門線「半蔵門」駅徒歩6分 東京メトロ有楽町線「麹町」駅徒歩7分 |
| その他交通 | 築年月 | 1978年03月 | |
| 方角 | 構造 | 鉄筋コンクリート造(RC造) 5階建 | |
| 契約期間 | 2年間 | 契約形態 | 普通借家 |
| 償却 | 0ヶ月 | 設備 | エレベーター |
| 更新料 | 1ヶ月 | 更新日 | 2025年09月11日 |
| 備考 | |||



お問い合わせの際は、「部屋No.48229」とお伝えください。





























1978年竣工、赤茶色のレンガタイル張りの外観の重厚感のあるヴィンテージマンションです。事務所として利用可能なお部屋もございます。
貸室は20坪前後、事務所仕様になっているお部屋もございます。EV1基、セキュリティは機械警備を完備しています。
複数路線利用可能で交通アクセス良好!
周辺はオフィスや住宅が度が並ぶ静かなエリア。飲食店などは駅前にありますのでそちらが便利です。