推奨利用人数
7人~8人
【成約済み】G4ビル 9階
- 所在地:東京都中央区銀座4丁目10番6号
- 交通:東京メトロ日比谷線「東銀座」駅徒歩2分
- 交通2:東京メトロ銀座線「銀座」駅徒歩5分
- 交通3:東京メトロ有楽町線「新富町」駅徒歩10分
| 賃料:相談 (税別) | 管理費:相談 (税別) |
| 敷金:12ヶ月- | 礼金:0ヶ月 |
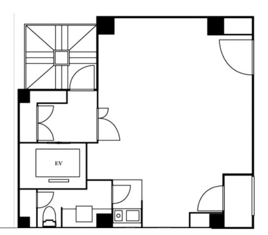
| 面積:46.05m² | 所在階:地上9階 |
| 間取り:事務所 | 築年月:1990年11月 |
| 賃料/管理費 | 相談 (税別)/相談 (税別) | フリーレント | 0ヶ月 |
|---|---|---|---|
| 敷金/礼金 | 12ヶ月/0ヶ月 | 内見・入居 | 内見可 |
| 間取り | 事務所 | 面積 | 46.05m² |
| 所在階 | 地上9階 | 最大スペース | |
| 住所 | 東京都中央区銀座4丁目10番6号 | 最寄駅 | 東京メトロ日比谷線「東銀座」駅徒歩2分 東京メトロ銀座線「銀座」駅徒歩5分 東京メトロ有楽町線「新富町」駅徒歩10分 |
| その他交通 | 築年月 | 1990年11月 | |
| 方角 | 構造 | 鉄骨鉄筋コンクリート造(SRC造) 9階建 | |
| 契約期間 | その他 | 契約形態 | 定期借家 |
| 償却 | 0ヶ月 | 設備 | エレベーター |
| 更新料 | 0ヶ月 | 更新日 | 2025年09月11日 |
| 備考 | |||



お問い合わせの際は、「部屋No.48251」とお伝えください。





























G4ビルは1990年竣工のオフィスビル、グレーのパネル張りの外観の建物で新耐震基準に適合しています。
1フロア約14坪ほどのコンパクトなオフィスは、室内に専用トイレと給湯設備があり使い勝手も良好です。
周辺は飲食店が多く、ビジネスホテルなどもある便利なエリア、歌舞伎座も至近。
銀座駅へも徒歩5分で利用可能ですので仕事終わりの買い物環境も充実しています!