推奨利用人数
3人~4人
【成約済み】コーポ高田 202号室
- 所在地:東京都新宿区高田馬場2丁目7番11号
- 交通:東京メトロ東西線「高田馬場」駅徒歩5分
- 交通2:東京メトロ副都心線「西早稲田」駅徒歩10分
- 交通3:JR山手線「目白」駅徒歩15分
| 賃料:-- (税別) | 管理費:0円 (税別) |
| 敷金:2ヶ月- | 礼金:1ヶ月 |
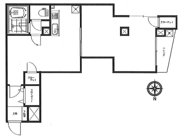
| 面積:41.98m² | 所在階:地上2階 |
| 間取り:事務所 | 築年月:1970年05月 |
| 賃料/管理費 | -- (税別)/0円 (税別) | フリーレント | 0ヶ月 |
|---|---|---|---|
| 敷金/礼金 | 2ヶ月/1ヶ月 | 内見・入居 | 相談 |
| 間取り | 事務所 | 面積 | 41.98m² |
| 所在階 | 地上2階 | 最大スペース | |
| 住所 | 東京都新宿区高田馬場2丁目7番11号 | 最寄駅 | 東京メトロ東西線「高田馬場」駅徒歩5分 東京メトロ副都心線「西早稲田」駅徒歩10分 JR山手線「目白」駅徒歩15分 |
| その他交通 | 築年月 | 1970年05月 | |
| 方角 | 構造 | 鉄筋コンクリート造(RC造) 5階建 | |
| 契約期間 | 2年間 | 契約形態 | 普通借家 |
| 償却 | 1ヶ月 | 設備 | |
| 更新料 | 1ヶ月 | 更新日 | 2025年09月11日 |
| 備考 | ・エレベーターはありません | ||
| その他費用 | ・駐輪場:無料 ・消毒費用:15,000円(税別) ・事務手数料:10,000円(税別) ・24時間トラブルサービス:15,000円(税別) |
||



お問い合わせの際は、「部屋No.48261」とお伝えください。





























複数路線利用可能で交通アクセス良好
周辺は住宅街で落ち着いた環境
コンビニやスーパーが豊富で買い物にも便利です