推奨利用人数
15人~19人
【成約済み】VORT神保町Ⅱ(旧称:鉄建神保町ビル) 6階
- 所在地:東京都千代田区神田神保町1丁目42番4号
- 交通:都営新宿線「神保町」駅徒歩3分
- 交通2:JR中央・総武線「水道橋」駅徒歩7分
- 交通3:東京メトロ千代田線「新御茶ノ水」駅徒歩11分
| 賃料:-- (税別) | 管理費:84,690円 (税別) |
| 敷金:4ヶ月- | 礼金:0ヶ月 |
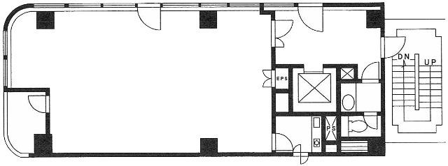
| 面積:93.33m² | 所在階:地上6階 |
| 間取り:事務所 | 築年月:1992年02月 |
| 賃料/管理費 | -- (税別)/84,690円 (税別) | フリーレント | 0ヶ月 |
|---|---|---|---|
| 敷金/礼金 | 4ヶ月/0ヶ月 | 内見・入居 | 内見可 |
| 間取り | 事務所 | 面積 | 93.33m² |
| 所在階 | 地上6階 | 最大スペース | |
| 住所 | 東京都千代田区神田神保町1丁目42番4号 | 最寄駅 | 都営新宿線「神保町」駅徒歩3分 JR中央・総武線「水道橋」駅徒歩7分 東京メトロ千代田線「新御茶ノ水」駅徒歩11分 |
| その他交通 | 築年月 | 1992年02月 | |
| 方角 | 構造 | 鉄骨構造(S造) 10階建 | |
| 契約期間 | 2年間 | 契約形態 | 普通借家 |
| 償却 | 0ヶ月 | 設備 | エレベーター |
| 更新料 | 1ヶ月 | 更新日 | 2025年09月11日 |
| 備考 | ・エントランス開放時間:6時30分~21時 | ||



お問い合わせの際は、「部屋No.48275」とお伝えください。





























1992年竣工、透明感のあるガラス張りの建物です。新耐震基準に適合しています。
基準となるフロアは約29坪、1フロア1テナント利用で使い勝手も良好です。室外にトイレ、室内には給湯室を備えています。 セキュリティは機械警備を完備、エントランスは夜間オートロックが作動いたします。
周辺には飲食店が多く、銀行や郵便局も至近で便利です。