推奨利用人数
30人~39人
【成約済み】ハビウル西新橋 6階
- 所在地:東京都港区西新橋2丁目35番2号
- 交通:都営三田線「内幸町」駅徒歩7分
- 交通2:東京メトロ銀座線「虎ノ門」駅徒歩9分
- 交通3:東京メトロ日比谷線「神谷町」駅徒歩10分
| 賃料:-- (税別) | 管理費:0円 (税別) |
| 敷金:10ヶ月- | 礼金:0ヶ月 |
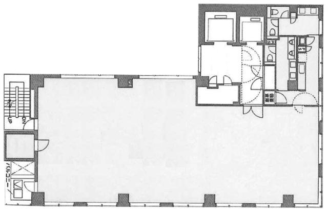
| 面積:237.45m² | 所在階:地上6階 |
| 間取り:事務所 | 築年月:2016年11月 |
| 賃料/管理費 | -- (税別)/0円 (税別) | フリーレント | 0ヶ月 |
|---|---|---|---|
| 敷金/礼金 | 10ヶ月/0ヶ月 | 内見・入居 | 内見可 |
| 間取り | 事務所 | 面積 | 237.45m² |
| 所在階 | 地上6階 | 最大スペース | |
| 住所 | 東京都港区西新橋2丁目35番2号 | 最寄駅 | 都営三田線「内幸町」駅徒歩7分 東京メトロ銀座線「虎ノ門」駅徒歩9分 東京メトロ日比谷線「神谷町」駅徒歩10分 |
| その他交通 | 東京メトロ丸ノ内線「霞が関」駅徒歩11分 | 築年月 | 2016年11月 |
| 方角 | 構造 | 鉄骨構造(S造) 12階建 | |
| 契約期間 | その他 | 契約形態 | 定期借家 |
| 償却 | 0ヶ月 | 設備 | エレベーター , OAフロア |
| 更新料 | 0ヶ月 | 更新日 | 2025年09月11日 |
| 備考 | |||



お問い合わせの際は、「部屋No.48399」とお伝えください。





























ハビウル西新橋は2016年竣工、新橋2丁目南交差点角地に立地するハイグレードオフィスです。全面ガラス張りのスタイリッシュな外観の建物です。新耐震基準に適合しています。
1フロア1テナント利用のオフィスは、男女別トイレとパントリーが室内にあり使い勝手も良好です。室内は余計な柱もなく、天井高2.7M超と開放感があります。OAフロアやシステム天井、機械警備完備など設備面も充実しています。
周辺は大規模な再開発計画が進行中の虎ノ門エリア、近隣には飲食店も多く虎ノ門ヒルズにも至近で利便性も良好です。