推奨利用人数
13人~14人
【成約済み】大門アーバニスト 203号室
- 所在地:東京都港区芝大門2丁目3番6号
- 交通:都営大江戸線「大門」駅徒歩1分
- 交通2:JR山手線「浜松町」駅徒歩4分
- 交通3:都営三田線「芝公園」駅徒歩7分
| 賃料:-- (税別) | 管理費:74,580円 (税別) |
| 敷金:4ヶ月- | 礼金:1ヶ月 |
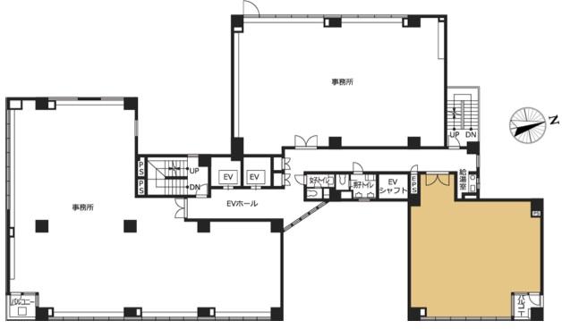
| 面積:82.19m² | 所在階:地上2階 |
| 間取り:事務所 | 築年月:1993年11月 |
| 賃料/管理費 | -- (税別)/74,580円 (税別) | フリーレント | 0ヶ月 |
|---|---|---|---|
| 敷金/礼金 | 4ヶ月/1ヶ月 | 内見・入居 | 相談 |
| 間取り | 事務所 | 面積 | 82.19m² |
| 所在階 | 地上2階 | 最大スペース | |
| 住所 | 東京都港区芝大門2丁目3番6号 | 最寄駅 | 都営大江戸線「大門」駅徒歩1分 JR山手線「浜松町」駅徒歩4分 都営三田線「芝公園」駅徒歩7分 |
| その他交通 | 築年月 | 1993年11月 | |
| 方角 | 構造 | 鉄骨鉄筋コンクリート造(SRC造) 10階建 | |
| 契約期間 | 2年間 | 契約形態 | 普通借家 |
| 償却 | 0ヶ月 | 設備 | エレベーター , OAフロア |
| 更新料 | 1ヶ月 | 更新日 | 2025年09月11日 |
| 備考 | |||



お問い合わせの際は、「部屋No.48441」とお伝えください。





























1993年竣工、グレーの石張りの外観のオフィスビルです。新耐震基準に適合しています。
第一京浜から1本入った裏通りに立地しており、駅近ながら落ち着いた雰囲気のエリアです。建物は通り沿いに間口が広く重厚感があります。
建物にはEV2基、共用部に男女別トイレや給湯室があり貸室内は効率よくレイアウトすることが可能です。
周辺は飲食店も多く、利便性も良好です。