推奨利用人数
40人以上
【成約済み】文化エステート四谷ビル(旧:不動産会館) 4階
- 所在地:東京都新宿区四谷3丁目5番1号
- 交通:東京メトロ丸の内線「四谷三丁目」駅徒歩1分
- 交通2:都営新宿線「曙橋」駅徒歩9分
- 交通3:東京メトロ南北線「四ツ谷」駅徒歩11分
| 賃料:相談 (税別) | 管理費:相談 (税別) |
| 敷金:10ヶ月- | 礼金:0ヶ月 |
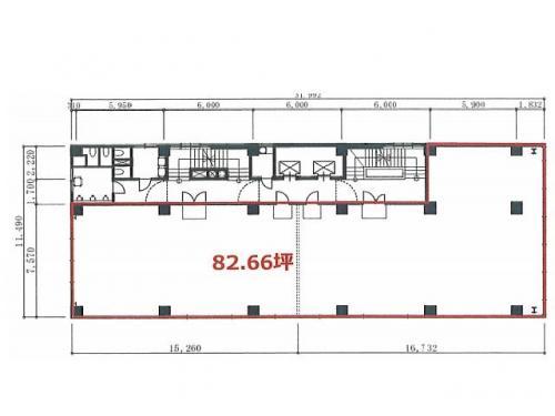
| 面積:273.26m² | 所在階:地上4階 |
| 間取り:事務所 | 築年月:1962年01月 |
| 賃料/管理費 | 相談 (税別)/相談 (税別) | フリーレント | 0ヶ月 |
|---|---|---|---|
| 敷金/礼金 | 10ヶ月/0ヶ月 | 内見・入居 | |
| 間取り | 事務所 | 面積 | 273.26m² |
| 所在階 | 地上4階 | 最大スペース | |
| 住所 | 東京都新宿区四谷3丁目5番1号 | 最寄駅 | 東京メトロ丸の内線「四谷三丁目」駅徒歩1分 都営新宿線「曙橋」駅徒歩9分 東京メトロ南北線「四ツ谷」駅徒歩11分 |
| その他交通 | JR中央・総武線「信濃町」駅11分 | 築年月 | 1962年01月 |
| 方角 | 構造 | 鉄骨鉄筋コンクリート造(SRC造) 7階建 | |
| 契約期間 | その他 | 契約形態 | |
| 償却 | 0ヶ月 | 設備 | エレベーター , OAフロア |
| 更新料 | 1ヶ月 | 更新日 | 2025年09月11日 |
| 備考 | |||



お問い合わせの際は、「部屋No.48462」とお伝えください。





























1962年竣工、水色のパネル張りのオフィスビルです。新宿通りに面した視認性の高い建物です。
建物にはEVが2基、朝の忙しい時間もストレスフリーでご利用いただけます。基準となるフロアは約83坪、各フロア室外に男女別のトイレがあり、貸室内は効率よくレイアウトすることが可能です。OAフロア、個別空調など設備も充実しています。
新宿通り沿いは飲食店が多くあり、利便性良好!特に隣のビルにはコンビニがあり便利です。