推奨利用人数
11人~12人
【成約済み】松岡第二銀緑館 5階
- 所在地:東京都中央区銀座1丁目9番6号
- 交通:東京メトロ有楽町線「銀座一丁目」駅徒歩1分
- 交通2:都営浅草線「宝町」駅徒歩5分
- 交通3:東京メトロ銀座線「銀座」駅徒歩6分
| 賃料:-- (税別) | 管理費:0円 (税別) |
| 敷金:10ヶ月- | 礼金:0ヶ月 |
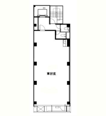
| 面積:75.63m² | 所在階:地上5階 |
| 間取り:事務所 | 築年月:2008年11月 |
| 賃料/管理費 | -- (税別)/0円 (税別) | フリーレント | 0ヶ月 |
|---|---|---|---|
| 敷金/礼金 | 10ヶ月/0ヶ月 | 内見・入居 | 内見可 |
| 間取り | 事務所 | 面積 | 75.63m² |
| 所在階 | 地上5階 | 最大スペース | |
| 住所 | 東京都中央区銀座1丁目9番6号 | 最寄駅 | 東京メトロ有楽町線「銀座一丁目」駅徒歩1分 都営浅草線「宝町」駅徒歩5分 東京メトロ銀座線「銀座」駅徒歩6分 |
| その他交通 | JR山手線「有楽町」駅8分 | 築年月 | 2008年11月 |
| 方角 | 構造 | 鉄骨構造(S造) 9階建 | |
| 契約期間 | 5年間 | 契約形態 | 定期借家 |
| 償却 | 0ヶ月 | 設備 | エレベーター , OAフロア |
| 更新料 | 更新日 | 2025年09月11日 | |
| 備考 | |||



お問い合わせの際は、「部屋No.48469」とお伝えください。





























松岡第二銀緑館は「銀座一丁目」駅徒歩1分の駅近オフィス!デザイン性の高い外観が視認性を高めています。
1フロア1テナント利用で室内には男女別のトイレと給湯室を完備、個別空調やOA床など設備面も充実しています。セキュリティは機械警備を導入しており安心してご利用いただけます。天井高2.6メートルの開放的なオフィス空間です。
周辺は飲食店が多く、カフェやコンビニ、金融機関なども至近。華やかな銀座エリアの注目オフィスです!