推奨利用人数
15人~19人
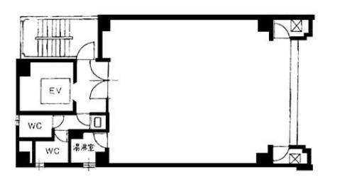
御徒町台東ビル 8階
- 所在地:東京都台東区台東4丁目26番8号
- 交通:都営大江戸線「新御徒町」駅徒歩1分
- 交通2:東京メトロ日比谷線「仲御徒町」駅徒歩5分
- 交通3:JR山手線「御徒町」駅徒歩7分
| 賃料:330,000円 (税別) | 管理費:55,000円 (税別) |
| 敷金:10ヶ月- | 礼金:0ヶ月 |
| 面積:90.91m² | 所在階:地上8階 |
| 間取り:事務所 | 築年月:1988年11月 |
| 賃料/管理費 | 330,000円 (税別)/55,000円 (税別) | フリーレント | 0ヶ月 |
|---|---|---|---|
| 敷金/礼金 | 10ヶ月/0ヶ月 | 内見・入居 | 相談 |
| 間取り | 事務所 | 面積 | 90.91m² |
| 所在階 | 地上8階 | 最大スペース | |
| 住所 | 東京都台東区台東4丁目26番8号 | 最寄駅 | 都営大江戸線「新御徒町」駅徒歩1分 東京メトロ日比谷線「仲御徒町」駅徒歩5分 JR山手線「御徒町」駅徒歩7分 |
| その他交通 | 築年月 | 1988年11月 | |
| 方角 | 構造 | 鉄骨鉄筋コンクリート造(SRC造) 9階建 | |
| 契約期間 | 2年間 | 契約形態 | 普通借家 |
| 償却 | 0ヶ月 | 設備 | エレベーター , OAフロア |
| 更新料 | 1ヶ月 | 更新日 | 2025年09月11日 |
| 備考 | |||



お問い合わせの際は、「部屋No.48512」とお伝えください。





























1988年竣工、白いパネル張りの外壁とミラーガラスが特徴的な外観の建物です。新耐震基準をクリアしています。
1フロア1テナント利用のオフィスは、基準階約27坪ほど。男女別のトイレと給湯室が室外にあり貸室内は効率よくレイアウトすることが可能です。
春日通沿いに面しており、視認性も良好!「新御徒町」駅からは徒歩1分の距離ですのでアクセスも良好です。
周辺はオフィス街、金融機関やコンビニも多くありますので利便性も良いです。