推奨利用人数
20人~24人
【成約済み】櫻井ビル(芝) 7階
- 所在地:東京都港区芝3丁目15番15号
- 交通:都営大江戸線「赤羽橋」駅徒歩5分
- 交通2:都営三田線「芝公園」駅徒歩5分
- 交通3:都営浅草線「三田」駅徒歩10分
| 賃料:-- (税別) | 管理費:102,300円 (税別) |
| 敷金:8ヶ月- | 礼金:0ヶ月 |
| 面積:135.27m² | 所在階:地上7階 |
| 間取り:事務所 | 築年月:1987年11月 |
| 賃料/管理費 | -- (税別)/102,300円 (税別) | フリーレント | 0ヶ月 |
|---|---|---|---|
| 敷金/礼金 | 8ヶ月/0ヶ月 | 内見・入居 | |
| 間取り | 事務所 | 面積 | 135.27m² |
| 所在階 | 地上7階 | 最大スペース | |
| 住所 | 東京都港区芝3丁目15番15号 | 最寄駅 | 都営大江戸線「赤羽橋」駅徒歩5分 都営三田線「芝公園」駅徒歩5分 都営浅草線「三田」駅徒歩10分 |
| その他交通 | 築年月 | 1987年11月 | |
| 方角 | 構造 | 鉄骨鉄筋コンクリート造(SRC造) 10階建 | |
| 契約期間 | 2年間 | 契約形態 | 普通借家 |
| 償却 | 2ヶ月 | 設備 | エレベーター , OAフロア |
| 更新料 | 1ヶ月 | 更新日 | 2025年09月11日 |
| 備考 | ・居抜き利用相談可能 | ||



お問い合わせの際は、「部屋No.48531」とお伝えください。





























1987年竣工、白いパネル張りのオフィスビル。桜田通り沿いに面しており1階にはお弁当やさんが入店していますので目印になります。新耐震基準をクリアした建物です。
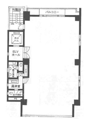
1フロア1テナント利用、室内に給湯室と男女別のトイレがあり使い勝手も良好!セキュリティには機械警備を完備し安心してご利用いただけます。
向い側には「三田国際ビル」があり、同ビル地下1階には郵便局やコンビニがありますので利便性も良好です!