推奨利用人数
30人~39人
【成約済み】KSS五反田ビル 4階
- 所在地:東京都品川区西五反田1丁目21番8号
- 交通:東急池上線「大崎広小路」駅徒歩1分
- 交通2:都営浅草線「五反田」駅徒歩6分
- 交通3:JR山手線「大崎」駅徒歩7分
| 賃料:相談 (税別) | 管理費:相談 (税別) |
| 敷金:12ヶ月- | 礼金:0ヶ月 |
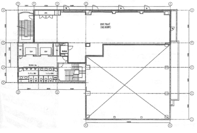
| 面積:207.7m² | 所在階:地上4階 |
| 間取り:事務所 | 築年月:1995年03月 |
| 賃料/管理費 | 相談 (税別)/相談 (税別) | フリーレント | 0ヶ月 |
|---|---|---|---|
| 敷金/礼金 | 12ヶ月/0ヶ月 | 内見・入居 | 相談 |
| 間取り | 事務所 | 面積 | 207.7m² |
| 所在階 | 地上4階 | 最大スペース | |
| 住所 | 東京都品川区西五反田1丁目21番8号 | 最寄駅 | 東急池上線「大崎広小路」駅徒歩1分 都営浅草線「五反田」駅徒歩6分 JR山手線「大崎」駅徒歩7分 |
| その他交通 | 築年月 | 1995年03月 | |
| 方角 | 構造 | 鉄骨鉄筋コンクリート造(SRC造) 5階建 | |
| 契約期間 | 2年間 | 契約形態 | 普通借家 |
| 償却 | 0ヶ月 | 設備 | エレベーター , OAフロア |
| 更新料 | 0ヶ月 | 更新日 | 2025年09月11日 |
| 備考 | エントランス:平日 8:00-19:00 土日祝祭日 閉 (通用口により24時間入退館可能) | ||



お問い合わせの際は、「部屋No.48627」とお伝えください。





























1995年竣工!上層階がミラーガラス張りのスタイリッシュな外観の建物です。新耐震基準をクリアしています。
基準となるフロアは約146坪、時期により分割区画の募集もございます。建物にはEV2基、機械式駐車場設備、セキュリティは機械警備を完備しており安心してご利用可能です。
EVホールに男女別トイレと給湯室がありますので、室内は効率よくレイアウトすることができます。OA床や個別空調など設備も充実しています。
最寄の「大崎広小路」駅は徒歩1分、そのほか大崎駅や五反田駅も徒歩7分以内でご利用できいますので、アクセスも良いオフィスです!