推奨利用人数
9人~10人
【成約済み】Bonheur西神田BLDG.(ボヌールニシカンダビル) 3階
- 所在地:東京都千代田区西神田2丁目1番8号
- 交通:東京メトロ半蔵門線「神保町」駅徒歩5分
- 交通2:都営三田線「水道橋」駅徒歩6分
- 交通3:東京メトロ東西線「九段下」駅徒歩9分
| 賃料:-- (税別) | 管理費:16,670円 (税別) |
| 敷金:6ヶ月- | 礼金:1ヶ月 |
| 面積:55.11m² | 所在階:地上3階 |
| 間取り:事務所 | 築年月:2019年03月 |
| 賃料/管理費 | -- (税別)/16,670円 (税別) | フリーレント | 0ヶ月 |
|---|---|---|---|
| 敷金/礼金 | 6ヶ月/1ヶ月 | 内見・入居 | 内見可 |
| 間取り | 事務所 | 面積 | 55.11m² |
| 所在階 | 地上3階 | 最大スペース | |
| 住所 | 東京都千代田区西神田2丁目1番8号 | 最寄駅 | 東京メトロ半蔵門線「神保町」駅徒歩5分 都営三田線「水道橋」駅徒歩6分 東京メトロ東西線「九段下」駅徒歩9分 |
| その他交通 | 築年月 | 2019年03月 | |
| 方角 | 構造 | 鉄骨構造(S造) 12階建 | |
| 契約期間 | 3年間 | 契約形態 | 普通借家 |
| 償却 | 0ヶ月 | 設備 | エレベーター |
| 更新料 | 1ヶ月 | 更新日 | 2025年09月11日 |
| 備考 | |||



お問い合わせの際は、「部屋No.48700」とお伝えください。





























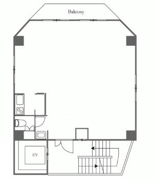
2019年3月竣工の築浅オフィスです!1,2階は大理石調の素材を使用した高級感のある店舗区画、3階以上はオフィスフロアになっています。
基準となるオフィスは約16坪とコンパクトサイズ、1フロア1テナント利用で、室内に専用のトイレと給湯設備を完備しております。天井高3m超の開放感のある貸室が魅力です。EV不停止機能付でセキュリティ面も安心です。
周辺には大学があり、学生さんが多く行きかう活気あるエリア。飲食店やコンビニもすぐそばにあり便利です。