推奨利用人数
15人~19人
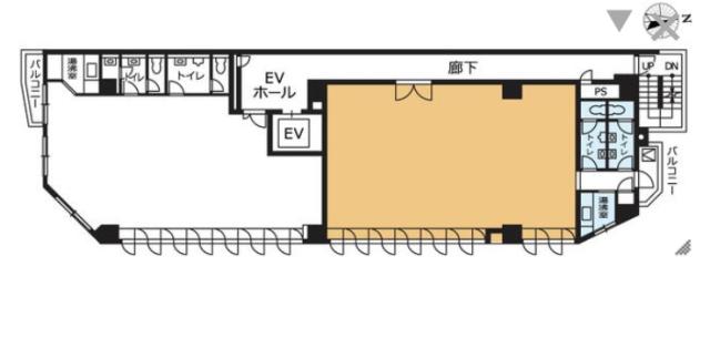
【成約済み】グレイス高輪【事務所/8・9階以外】 502号室
- 所在地:東京都港区高輪2丁目14番17号
- 交通:都営浅草線「泉岳寺」駅徒歩4分
- 交通2:JR京浜東北線「品川」駅徒歩10分
- 交通3:―
| 賃料:-- (税別) | 管理費:95,100円 (税別) |
| 敷金:4ヶ月- | 礼金:1ヶ月 |
| 面積:104.8m² | 所在階:地上5階 |
| 間取り:事務所 | 築年月:1985年10月 |
| 賃料/管理費 | -- (税別)/95,100円 (税別) | フリーレント | 0ヶ月 |
|---|---|---|---|
| 敷金/礼金 | 4ヶ月/1ヶ月 | 内見・入居 | 相談 (2024年11月上旬) |
| 間取り | 事務所 | 面積 | 104.8m² |
| 所在階 | 地上5階 | 最大スペース | |
| 住所 | 東京都港区高輪2丁目14番17号 | 最寄駅 | 都営浅草線「泉岳寺」駅徒歩4分 JR京浜東北線「品川」駅徒歩10分 ― |
| その他交通 | 築年月 | 1985年10月 | |
| 方角 | 構造 | 鉄骨鉄筋コンクリート造(SRC造) 11階建 | |
| 契約期間 | 2年間 | 契約形態 | 普通借家 |
| 償却 | 0ヶ月 | 設備 | エレベーター , OAフロア |
| 更新料 | 1ヶ月 | 更新日 | 2025年09月11日 |
| 備考 | ・エントランス開放時間:6時~23時まで(平日・土日・祭日) | ||



お問い合わせの際は、「部屋No.48707」とお伝えください。





























第一京浜に面した白タイル張りのひと際存在感のあるビル。
新駅開業でこれからの発展が楽しみなエリアです。