推奨利用人数
15人~19人
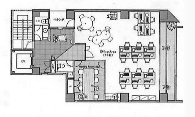
【成約済み】ポータル秋葉原 2階
- 所在地:東京都千代田区東神田2丁目10番9号
- 交通:JR中央・総武線「浅草橋」駅徒歩5分
- 交通2:都営新宿線「岩本町」駅徒歩7分
- 交通3:東京メトロ日比谷線「秋葉原」駅徒歩8分
| 賃料:相談 (税別) | 管理費:相談 (税別) |
| 敷金:6ヶ月- | 礼金:0ヶ月 |
| 面積:116.36m² | 所在階:地上2階 |
| 間取り:事務所 | 築年月:2002年05月 |
| 賃料/管理費 | 相談 (税別)/相談 (税別) | フリーレント | 0ヶ月 |
|---|---|---|---|
| 敷金/礼金 | 6ヶ月/0ヶ月 | 内見・入居 | 内見可 |
| 間取り | 事務所 | 面積 | 116.36m² |
| 所在階 | 地上2階 | 最大スペース | |
| 住所 | 東京都千代田区東神田2丁目10番9号 | 最寄駅 | JR中央・総武線「浅草橋」駅徒歩5分 都営新宿線「岩本町」駅徒歩7分 東京メトロ日比谷線「秋葉原」駅徒歩8分 |
| その他交通 | JR総武本線「馬喰町」駅4分 | 築年月 | 2002年05月 |
| 方角 | 構造 | 鉄骨構造(S造) 8階建 | |
| 契約期間 | 2年間 | 契約形態 | 普通借家 |
| 償却 | 0ヶ月 | 設備 | エレベーター , OAフロア |
| 更新料 | 1ヶ月 | 更新日 | 2025年09月11日 |
| 備考 | |||



お問い合わせの際は、「部屋No.48730」とお伝えください。





























2002年竣工、グレーの外観の高級感ある建物です。
2018年、エントランスやEVホール貸室内を大規模リノベーションしデザイナーズオフィスへと生まれ変わりました!
1フロア1テナント利用のオフィスは基準階約38坪。
受付と会議室の造作が予め設置されていますので、すぐに業務を開始していただけます。
男女別のトイレ、給湯設備、光ファイバーなど設備面も充実。
機械警備が完備されており24時間安心してご利用いただけます。
靖国通りから1本入った場所にあり、周辺は比較的落ち着いたオフィス街。
最寄の馬喰町をはじめ、岩本町や秋葉原駅、東日本橋駅が徒歩10分以内で利用できアクセスの良い立地です。