推奨利用人数
7人~8人
【成約済み】前田山陽ビル 6階
- 所在地:東京都中央区銀座1丁目20番15号
- 交通:東京メトロ有楽町線「銀座一丁目」駅徒歩3分
- 交通2:都営浅草線「東銀座」駅徒歩4分
- 交通3:東京メトロ銀座線「銀座」駅徒歩7分
| 賃料:-- (税別) | 管理費:0円 (税別) |
| 敷金:10ヶ月- | 礼金:0ヶ月 |
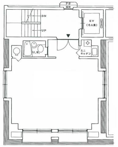
| 面積:47.07m² | 所在階:地上6階 |
| 間取り:事務所 | 築年月:1980年05月 |
| 賃料/管理費 | -- (税別)/0円 (税別) | フリーレント | 0ヶ月 |
|---|---|---|---|
| 敷金/礼金 | 10ヶ月/0ヶ月 | 内見・入居 | 内見可 |
| 間取り | 事務所 | 面積 | 47.07m² |
| 所在階 | 地上6階 | 最大スペース | |
| 住所 | 東京都中央区銀座1丁目20番15号 | 最寄駅 | 東京メトロ有楽町線「銀座一丁目」駅徒歩3分 都営浅草線「東銀座」駅徒歩4分 東京メトロ銀座線「銀座」駅徒歩7分 |
| その他交通 | 築年月 | 1980年05月 | |
| 方角 | 構造 | 鉄筋コンクリート造(RC造) 11階建 | |
| 契約期間 | 2年間 | 契約形態 | 普通借家 |
| 償却 | 1ヶ月 | 設備 | エレベーター |
| 更新料 | 1ヶ月 | 更新日 | 2025年09月11日 |
| 備考 | |||



お問い合わせの際は、「部屋No.48734」とお伝えください。





























1980年竣工のオフィス、外観はベージュのタイル張りの建物です。バルコニーがありリフレッシュにも最適です。
室内はユニットバスとコンパクトなキッチンがあり、使い勝手も良好!整形でシンプルな間取りですのでレイアウト効率も良いです。
周辺はオフィス街、飲食店やコンビニも通り沿いに多くありますので利便性も良好です!