推奨利用人数
13人~14人
【成約済み】矢島ビル(東日本橋) 2階
- 所在地:東京都中央区日本橋富沢町9番9号
- 交通:都営浅草線「東日本橋」駅徒歩3分
- 交通2:都営新宿線「馬喰横山」駅徒歩3分
- 交通3:東京メトロ日比谷線「小伝馬町」駅徒歩6分
| 賃料:-- (税別) | 管理費:0円 (税別) |
| 敷金:6ヶ月- | 礼金:0ヶ月 |
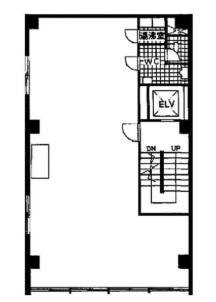
| 面積:85.49m² | 所在階:地上2階 |
| 間取り:事務所 | 築年月:1967年08月 |
| 賃料/管理費 | -- (税別)/0円 (税別) | フリーレント | 0ヶ月 |
|---|---|---|---|
| 敷金/礼金 | 6ヶ月/0ヶ月 | 内見・入居 | |
| 間取り | 事務所 | 面積 | 85.49m² |
| 所在階 | 地上2階 | 最大スペース | |
| 住所 | 東京都中央区日本橋富沢町9番9号 | 最寄駅 | 都営浅草線「東日本橋」駅徒歩3分 都営新宿線「馬喰横山」駅徒歩3分 東京メトロ日比谷線「小伝馬町」駅徒歩6分 |
| その他交通 | 築年月 | 1967年08月 | |
| 方角 | 構造 | 鉄筋コンクリート造(RC造) 6階建 | |
| 契約期間 | 契約形態 | 定期借家 | |
| 償却 | 0ヶ月 | 設備 | エレベーター |
| 更新料 | 0ヶ月 | 更新日 | 2025年09月11日 |
| 備考 | |||



お問い合わせの際は、「部屋No.48744」とお伝えください。





























1967年竣工のオフィスビル。落ち着いた茶色の外壁の建物です。人形町通りから少し入った場所に立地しており、比較的閑静な立地です。
1フロア1テナント利用、室内にトイレと給湯室があり使い勝手も良好です。
周辺は飲食店が多くあり、コンビニもありますので利便性も良好です!