推奨利用人数
20人~24人
【成約済み】エルツ6 3階
- 所在地:東京都新宿区新宿6丁目29番6号
- 交通:都営大江戸線「東新宿」駅徒歩2分
- 交通2:都営新宿線「新宿三丁目」駅徒歩10分
- 交通3:JR山手線「新宿」駅徒歩15分
| 賃料:-- (税別) | 管理費:142,500円 (税別) |
| 敷金:10ヶ月- | 礼金:0ヶ月 |
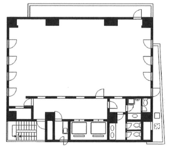
| 面積:157.02m² | 所在階:地上3階 |
| 間取り:事務所 | 築年月:1994年07月 |
| 賃料/管理費 | -- (税別)/142,500円 (税別) | フリーレント | 0ヶ月 |
|---|---|---|---|
| 敷金/礼金 | 10ヶ月/0ヶ月 | 内見・入居 | 内見可 |
| 間取り | 事務所 | 面積 | 157.02m² |
| 所在階 | 地上3階 | 最大スペース | |
| 住所 | 東京都新宿区新宿6丁目29番6号 | 最寄駅 | 都営大江戸線「東新宿」駅徒歩2分 都営新宿線「新宿三丁目」駅徒歩10分 JR山手線「新宿」駅徒歩15分 |
| その他交通 | 築年月 | 1994年07月 | |
| 方角 | 構造 | 鉄骨鉄筋コンクリート造(SRC造) 10階建 | |
| 契約期間 | 2年間 | 契約形態 | 普通借家 |
| 償却 | 10% | 設備 | エレベーター , OAフロア |
| 更新料 | 1ヶ月 | 更新日 | 2025年09月11日 |
| 備考 | |||



お問い合わせの際は、「部屋No.48799」とお伝えください。





























1994年竣工、白い壁とダークトーンの窓のコントラストが目を惹く外観のオフィスです。新耐震基準に適合しています。
EV2基、1フロア1テナント利用、室外に男女別のトイレと給湯室がありますので貸室内は効率よくレイアウトすることが可能です。
明治通り沿いに立地しており、個性的な外観をしていますので視認性も良好!建物の裏手には「新宿イーストサイドスクエア」があります。周辺は金融機関や飲食店なども多くあり利便性も良好です。