推奨利用人数
9人~10人
【成約済み】KDSビル 3階
- 所在地:東京都港区浜松町1丁目22番8号
- 交通:JR山手線「浜松町」駅徒歩1分
- 交通2:都営大江戸線「大門」駅徒歩1分
- 交通3:都営三田線「御成門」駅徒歩12分
| 賃料:-- (税別) | 管理費:0円 (税別) |
| 敷金:8ヶ月- | 礼金:0ヶ月 |
| 面積:56.99m² | 所在階:地上3階 |
| 間取り:事務所 | 築年月:1996年03月 |
| 賃料/管理費 | -- (税別)/0円 (税別) | フリーレント | 0ヶ月 |
|---|---|---|---|
| 敷金/礼金 | 8ヶ月/0ヶ月 | 内見・入居 | 内見可 |
| 間取り | 事務所 | 面積 | 56.99m² |
| 所在階 | 地上3階 | 最大スペース | |
| 住所 | 東京都港区浜松町1丁目22番8号 | 最寄駅 | JR山手線「浜松町」駅徒歩1分 都営大江戸線「大門」駅徒歩1分 都営三田線「御成門」駅徒歩12分 |
| その他交通 | 築年月 | 1996年03月 | |
| 方角 | 構造 | 鉄骨構造(S造) 5階建 | |
| 契約期間 | 2年間 | 契約形態 | 普通借家 |
| 償却 | 0ヶ月 | 設備 | エレベーター , OAフロア |
| 更新料 | 1ヶ月 | 更新日 | 2025年09月11日 |
| 備考 |
・正面入口 8:00-20:00 土日祝日 閉 時間外は正面エントランスよりカードキーにて入退館可能 |
||



お問い合わせの際は、「部屋No.48834」とお伝えください。





























1996年竣工、温かみのあるブラウンのタイル張りの建物、新耐震基準をクリアしています。2016年エントランスや各階のトイレのリニューアル工事を実施いたしました。
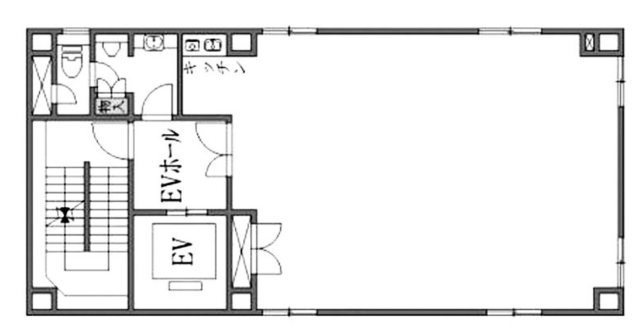
1フロア約17坪のコンパクトなオフィス、1フロア1テナント利用のオフィスは、室外にトイレがあり室内は効率よくレイアウトすることが可能です。セキュリティは機械警備を導入、EV不停止機能と連動し、安心してご利用いただけます。OA床や個別空調、光ファイバーなどあり設備面も充実しています。
現在浜松町駅前は現在大規模な再開発を行っており、今後が期待できるエリアです。周辺には飲食店も多く利便性も良好です。