推奨利用人数
20人~24人
【成約済み】第一麹町ビル 6階
- 所在地:東京都千代田区麹町4丁目4番
- 交通:東京メトロ有楽町線「麹町」駅徒歩3分
- 交通2:JR中央本線「四ツ谷」駅徒歩7分
- 交通3:東京メトロ半蔵門線「半蔵門」駅徒歩7分
| 賃料:-- (税別) | 管理費:91,310円 (税別) |
| 敷金:6ヶ月- | 礼金:0ヶ月 |
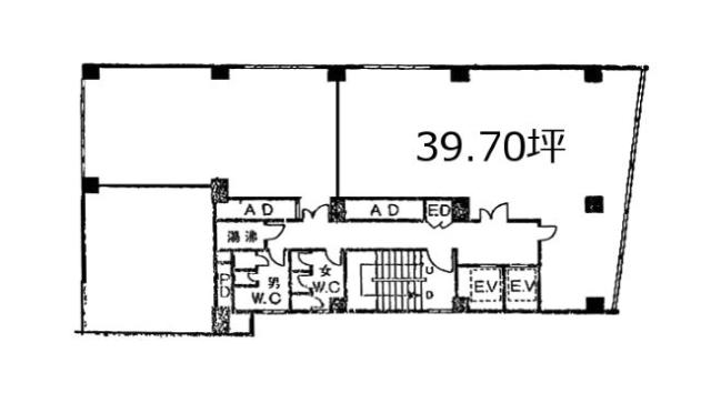
| 面積:131.17m² | 所在階:地上6階 |
| 間取り:事務所 | 築年月:1970年03月 |
| 賃料/管理費 | -- (税別)/91,310円 (税別) | フリーレント | 0ヶ月 |
|---|---|---|---|
| 敷金/礼金 | 6ヶ月/0ヶ月 | 内見・入居 | 内見可 |
| 間取り | 事務所 | 面積 | 131.17m² |
| 所在階 | 地上6階 | 最大スペース | |
| 住所 | 東京都千代田区麹町4丁目4番 | 最寄駅 | 東京メトロ有楽町線「麹町」駅徒歩3分 JR中央本線「四ツ谷」駅徒歩7分 東京メトロ半蔵門線「半蔵門」駅徒歩7分 |
| その他交通 | 築年月 | 1970年03月 | |
| 方角 | 構造 | 鉄骨鉄筋コンクリート造(SRC造) 8階建 | |
| 契約期間 | その他 | 契約形態 | 定期借家 |
| 償却 | 0ヶ月 | 設備 | エレベーター , OAフロア |
| 更新料 | 0ヶ月 | 更新日 | 2025年09月11日 |
| 備考 | |||
| その他費用 | ・保証会社加入要 | ||



お問い合わせの際は、「部屋No.48890」とお伝えください。





























1970年竣工のオフィスビル、前面ガラス張りの外観が築年数を感じさせない建物です。
新宿通り沿いに面して立地していますので、お客様にもご案内しやすいです。
基準となるオフィスフロアは約65坪、時期により分割区画が募集されます。共用部に男女別トイレと給湯室がありますので、室内は効率よくレイアウトすることが可能です。建物にはEV2基、駐車場設備もあり設備面でも充実しています。
周辺はコンビニや飲食店が充実しており、利便性も良好です。最寄の麹町駅のほか、半蔵門駅や四ッ谷駅も徒歩10分以内で利用することができますのでアクセスも便利です。