推奨利用人数
15人~19人
【成約済み】日本橋ノーススクエア 9階
- 所在地:東京都中央区日本橋堀留町1丁目4番2号
- 交通:東京メトロ日比谷線「小伝馬町」駅徒歩5分
- 交通2:都営浅草線「人形町」駅徒歩6分
- 交通3:都営新宿線「馬喰横山」駅徒歩9分
| 賃料:-- (税別) | 管理費:0円 (税別) |
| 敷金:相談- | 礼金:0ヶ月 |
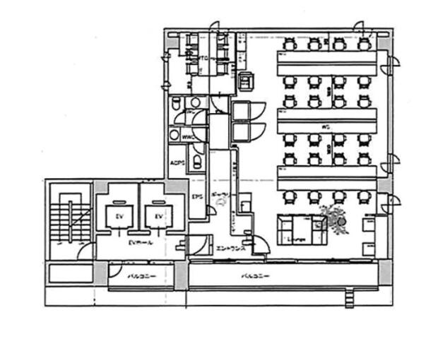
| 面積:125.62m² | 所在階:地上9階 |
| 間取り:事務所 | 築年月:1993年03月 |
| 賃料/管理費 | -- (税別)/0円 (税別) | フリーレント | 0ヶ月 |
|---|---|---|---|
| 敷金/礼金 | 相談/0ヶ月 | 内見・入居 | 相談 |
| 間取り | 事務所 | 面積 | 125.62m² |
| 所在階 | 地上9階 | 最大スペース | |
| 住所 | 東京都中央区日本橋堀留町1丁目4番2号 | 最寄駅 | 東京メトロ日比谷線「小伝馬町」駅徒歩5分 都営浅草線「人形町」駅徒歩6分 都営新宿線「馬喰横山」駅徒歩9分 |
| その他交通 | 築年月 | 1993年03月 | |
| 方角 | 構造 | 鉄骨鉄筋コンクリート造(SRC造) 9階建 | |
| 契約期間 | 2年間 | 契約形態 | 普通借家 |
| 償却 | 0ヶ月 | 設備 | エレベーター , OAフロア |
| 更新料 | 0ヶ月 | 更新日 | 2025年09月11日 |
| 備考 | |||



お問い合わせの際は、「部屋No.48903」とお伝えください。





























1993年竣工、グレーのパネル張りの外観とエントランス周りの石張りが高級感と重厚感のあるオフィスです。2018年、エントランスや共用部、室内をリニューアル工事実施いたしました。
1フロア1テナント利用のオフィスは、男女別のトイレと給湯室があり使い勝手も良好です。
EVは2基ございますので、朝の忙しい時間帯もノンストレスでご利用いただけます。セキュリティは機械警備を導入しております。
大通りから少し入った場所に立地していますので、周辺は比較的落ち着いた環境。複数の駅や路線にアクセス可能ですので、交通アクセスも至便です!