推奨利用人数
30人~39人
【成約済み】プラスアストルビル 6階
- 所在地:東京都港区麻布十番1丁目2番3号
- 交通:東京メトロ南北線「麻布十番」駅徒歩1分
- 交通2:都営大江戸線「赤羽橋」駅徒歩9分
- 交通3:東京メトロ日比谷線「六本木」駅徒歩14分
| 賃料:-- (税別) | 管理費:285,300円 (税別) |
| 敷金:12ヶ月- | 礼金:0ヶ月 |
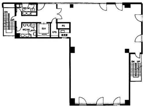
| 面積:209.59m² | 所在階:地上6階 |
| 間取り:事務所 | 築年月:1991年05月 |
| 賃料/管理費 | -- (税別)/285,300円 (税別) | フリーレント | 0ヶ月 |
|---|---|---|---|
| 敷金/礼金 | 12ヶ月/0ヶ月 | 内見・入居 | 相談 (2021年1月31日入居可予定) |
| 間取り | 事務所 | 面積 | 209.59m² |
| 所在階 | 地上6階 | 最大スペース | |
| 住所 | 東京都港区麻布十番1丁目2番3号 | 最寄駅 | 東京メトロ南北線「麻布十番」駅徒歩1分 都営大江戸線「赤羽橋」駅徒歩9分 東京メトロ日比谷線「六本木」駅徒歩14分 |
| その他交通 | 築年月 | 1991年05月 | |
| 方角 | 構造 | 鉄骨構造(S造) 9階建 | |
| 契約期間 | 2年間 | 契約形態 | 普通借家 |
| 償却 | 0ヶ月 | 設備 | エレベーター , OAフロア |
| 更新料 | 0ヶ月 | 更新日 | 2025年09月11日 |
| 備考 | |||



お問い合わせの際は、「部屋No.48935」とお伝えください。





























1991年竣工、グレーのタイル張りの外観の建物です。新耐震基準をクリアしています。
1フロア1テナント利用、室外に男女別のトイレがあり、室内は効率よくレイアウトすることが可能です。セキュリティは機械警備を完備しており安心してご利用いただけます。
周辺はオフィスがならぶオフィス街。麻布十番商店街も近く、コンビニや飲食店もあり利便性も良好です。