推奨利用人数
7人~8人
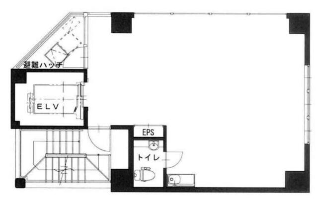
トナカイ神田タワー 2階
- 所在地:東京都千代田区神田東松下町12番1号
- 交通:JR山手線「神田」駅徒歩4分
- 交通2:都営新宿線「岩本町」駅徒歩4分
- 交通3:東京メトロ丸の内線「淡路町」駅徒歩10分
| 賃料:291,000円 (税別) | 管理費:0円 (税別) |
| 敷金:6ヶ月- | 礼金:0ヶ月 |
| 面積:52.1m² | 所在階:地上2階 |
| 間取り:事務所 | 築年月:2010年02月 |
| 賃料/管理費 | 291,000円 (税別)/0円 (税別) | フリーレント | 0ヶ月 |
|---|---|---|---|
| 敷金/礼金 | 6ヶ月/0ヶ月 | 内見・入居 | 内見可 |
| 間取り | 事務所 | 面積 | 52.1m² |
| 所在階 | 地上2階 | 最大スペース | |
| 住所 | 東京都千代田区神田東松下町12番1号 | 最寄駅 | JR山手線「神田」駅徒歩4分 都営新宿線「岩本町」駅徒歩4分 東京メトロ丸の内線「淡路町」駅徒歩10分 |
| その他交通 | 築年月 | 2010年02月 | |
| 方角 | 構造 | 鉄骨構造(S造) 12階建 | |
| 契約期間 | 2年間 | 契約形態 | 普通借家 |
| 償却 | 0ヶ月 | 設備 | エレベーター , OAフロア |
| 更新料 | 更新日 | 2025年09月11日 | |
| 備考 | |||



お問い合わせの際は、「部屋No.48956」とお伝えください。





























角地に立地 スタイリッシュな外観の新耐震基準ビル
複数路線利用可能で交通アクセス良好
人気の1フロア1テナント、天井高2.5m以上、OAフロア
ビルトインエアコン、光ファイバー、オートロック、非接触型ICカードキーなど充実の設備です