推奨利用人数
13人~14人
【成約済み】銀座リヨンビル 5階
- 所在地:東京都中央区銀座8丁目9番12号
- 交通:東京メトロ銀座線「銀座」駅徒歩4分
- 交通2:JR山手線「新橋」駅徒歩5分
- 交通3:都営浅草線「東銀座」駅徒歩9分
| 賃料:-- (税別) | 管理費:106,280円 (税別) |
| 敷金:10ヶ月- | 礼金:0ヶ月 |
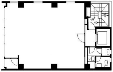
| 面積:87.83m² | 所在階:地上5階 |
| 間取り:事務所 | 築年月:1984年12月 |
| 賃料/管理費 | -- (税別)/106,280円 (税別) | フリーレント | 0ヶ月 |
|---|---|---|---|
| 敷金/礼金 | 10ヶ月/0ヶ月 | 内見・入居 | 相談 |
| 間取り | 事務所 | 面積 | 87.83m² |
| 所在階 | 地上5階 | 最大スペース | |
| 住所 | 東京都中央区銀座8丁目9番12号 | 最寄駅 | 東京メトロ銀座線「銀座」駅徒歩4分 JR山手線「新橋」駅徒歩5分 都営浅草線「東銀座」駅徒歩9分 |
| その他交通 | 築年月 | 1984年12月 | |
| 方角 | 構造 | 鉄骨鉄筋コンクリート造(SRC造) 9階建 | |
| 契約期間 | 2年間 | 契約形態 | 定期借家 |
| 償却 | 1ヶ月 | 設備 | エレベーター |
| 更新料 | 0ヶ月 | 更新日 | 2025年09月11日 |
| 備考 | |||



お問い合わせの際は、「部屋No.49011」とお伝えください。





























1984年竣工、白いタイル張りのモダンな外観の建物です。新耐震基準をクリアしています。
銀座駅徒歩4分、新橋駅徒歩5分、銀座中央通沿いという華やかな場所の好立地オフィスです!周辺には飲食店や金融機関などが立ち並び、利便性も良好です。
1フロア1テナント利用、室外に男女別のトイレと給湯室がありますので、室内は効率よくレイアウトすることが可能です。セキュリティは機械警備を導入していますので、安心してご利用いただくことができます。
1~2階にはバッグや靴を扱うアパレルブランドが入居しています。