推奨利用人数
40人以上
【成約済み】東京虎ノ門グローバルスクエア【事務所】 14階
- 所在地:東京都港区虎ノ門1丁目3番
- 交通:東京メトロ銀座線「虎ノ門」駅徒歩1分
- 交通2:東京メトロ丸の内線「霞ケ関」駅徒歩4分
- 交通3:都営三田線「内幸町」駅徒歩6分
| 賃料:相談 (税別) | 管理費:相談 (税別) |
| 敷金:相談- | 礼金:応相談 |
| 面積:290.81m² | 所在階:地上14階 |
| 間取り:事務所 | 築年月:2020年06月 |
| 賃料/管理費 | 相談 (税別)/相談 (税別) | フリーレント | 0ヶ月 |
|---|---|---|---|
| 敷金/礼金 | 相談/応相談 | 内見・入居 | 相談 (2020年7月予定) |
| 間取り | 事務所 | 面積 | 290.81m² |
| 所在階 | 地上14階 | 最大スペース | |
| 住所 | 東京都港区虎ノ門1丁目3番 | 最寄駅 | 東京メトロ銀座線「虎ノ門」駅徒歩1分 東京メトロ丸の内線「霞ケ関」駅徒歩4分 都営三田線「内幸町」駅徒歩6分 |
| その他交通 | 築年月 | 2020年06月 | |
| 方角 | 構造 | 鉄骨構造(S造)&一部鉄筋(RC造) 24階建 | |
| 契約期間 | その他 | 契約形態 | |
| 償却 | 0ヶ月 | 設備 | エレベーター , OAフロア |
| 更新料 | 更新日 | 2025年09月11日 | |
| 備考 | |||



お問い合わせの際は、「部屋No.49029」とお伝えください。





























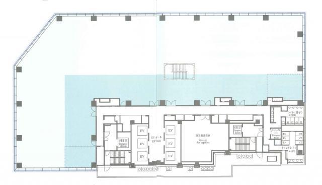
2020年6月竣工予定、地下3階、地上24階建てのハイグレードオフィスビルです。地下1階~地上2階には店舗、4階にカンファレンスが設けられ、5階~23階には高規格なオフィスが整備されます。
基準となるオフィスは約408坪、EV12基、共用部に男女別のトイレとユニバーサルトイレ、給湯室を完備。天井高3Mの開放的な空間は、レイアウトのしやすいグリッド天井や環境にやさしいLED照明を完備しています。OAフロアや個別空調など設備面も最新。
銀座線「虎ノ門」駅直結、地上には駅前広場が整備されます。地下通路からは日比谷線の新駅や虎ノ門ヒルズとも繋がります。