推奨利用人数
11人~12人
【成約済み】ヤマジョウビル 6階
- 所在地:東京都中央区日本橋人形町1丁目1番21号
- 交通:東京メトロ日比谷線「人形町」駅徒歩3分
- 交通2:東京メトロ半蔵門線「水天宮前」駅徒歩5分
- 交通3:東京メトロ東西線「茅場町」駅徒歩7分
| 賃料:-- (税別) | 管理費:0円 (税別) |
| 敷金:5ヶ月- | 礼金:0ヶ月 |
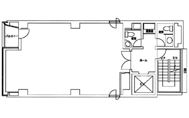
| 面積:75.21m² | 所在階:地上6階 |
| 間取り:事務所 | 築年月:1989年09月 |
| 賃料/管理費 | -- (税別)/0円 (税別) | フリーレント | 0ヶ月 |
|---|---|---|---|
| 敷金/礼金 | 5ヶ月/0ヶ月 | 内見・入居 | 内見可 |
| 間取り | 事務所 | 面積 | 75.21m² |
| 所在階 | 地上6階 | 最大スペース | |
| 住所 | 東京都中央区日本橋人形町1丁目1番21号 | 最寄駅 | 東京メトロ日比谷線「人形町」駅徒歩3分 東京メトロ半蔵門線「水天宮前」駅徒歩5分 東京メトロ東西線「茅場町」駅徒歩7分 |
| その他交通 | 築年月 | 1989年09月 | |
| 方角 | 構造 | 鉄骨鉄筋コンクリート造(SRC造) 8階建 | |
| 契約期間 | 2年間 | 契約形態 | 普通借家 |
| 償却 | 0ヶ月 | 設備 | エレベーター |
| 更新料 | 0ヶ月 | 更新日 | 2025年09月11日 |
| 備考 | |||



お問い合わせの際は、「部屋No.49140」とお伝えください。





























黒の重厚感のある外観が魅力的な新耐震基準の賃貸オフィスビル
1フロア1テナント、共用部に男女別トイレ、レイアウトしやすい間取りです