推奨利用人数
15人~19人
一番町KKビル 4階
- 所在地:東京都千代田区一番町13番8号
- 交通:東京メトロ半蔵門線「半蔵門」駅徒歩3分
- 交通2:東京メトロ有楽町線「麹町」駅徒歩9分
- 交通3:JR中央・総武線「市ケ谷」駅徒歩10分
| 賃料:532,420円 (税別) | 管理費:0円 (税別) |
| 敷金:6ヶ月- | 礼金:1ヶ月 |
| 面積:125.72m² | 所在階:地上4階 |
| 間取り:事務所 | 築年月:1986年01月 |
| 賃料/管理費 | 532,420円 (税別)/0円 (税別) | フリーレント | 0ヶ月 |
|---|---|---|---|
| 敷金/礼金 | 6ヶ月/1ヶ月 | 内見・入居 | 内見可 |
| 間取り | 事務所 | 面積 | 125.72m² |
| 所在階 | 地上4階 | 最大スペース | |
| 住所 | 東京都千代田区一番町13番8号 | 最寄駅 | 東京メトロ半蔵門線「半蔵門」駅徒歩3分 東京メトロ有楽町線「麹町」駅徒歩9分 JR中央・総武線「市ケ谷」駅徒歩10分 |
| その他交通 | 築年月 | 1986年01月 | |
| 方角 | 構造 | 鉄骨鉄筋コンクリート造(SRC造) 8階建 | |
| 契約期間 | 2年間 | 契約形態 | 普通借家 |
| 償却 | 1ヶ月 | 設備 | エレベーター |
| 更新料 | 1ヶ月 | 更新日 | 2025年09月11日 |
| 備考 | |||



お問い合わせの際は、「部屋No.49141」とお伝えください。





























1986年竣工、白いタイル張りの外観の清潔感のある建物です。新耐震基準をクリアしています。
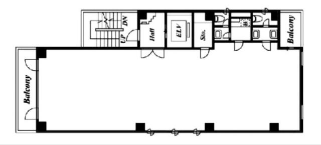
基準となるフロアは1フロア約38坪。EV1基、室内に男女別のトイレと給湯室があり使勝手も良好です。
貸室内は長方形の形状で、余計な柱もなくレイアウトのしやすい間取りです。
セキュリティは不停止機能付きのEVと有人警備を併用し安心感があります。
周辺は行政・政府機関が集中する閑静なビジネスエリア。近くにコンビニや飲食店も点在していますので便利です。