推奨利用人数
15人~19人
【成約済み】日本橋岡野ビル 2階
- 所在地:東京都中央区日本橋小伝馬町6番13号
- 交通:東京メトロ日比谷線「小伝馬町」駅徒歩3分
- 交通2:JR山手線「神田」駅徒歩8分
- 交通3:都営新宿線「馬喰横山」駅徒歩7分
| 賃料:-- (税別) | 管理費:114,000円 (税別) |
| 敷金:6ヶ月- | 礼金:0ヶ月 |
| 面積:125.62m² | 所在階:地上2階 |
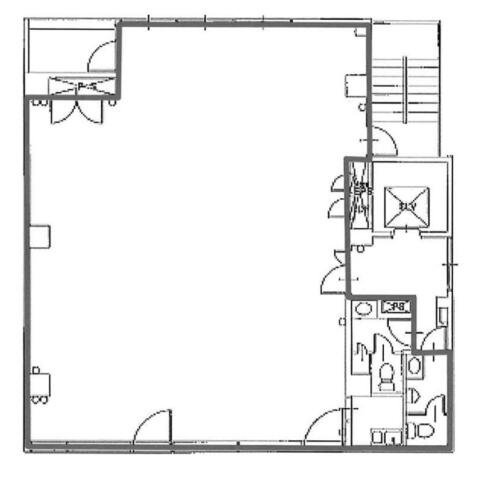
| 間取り:事務所 | 築年月:1989年01月 |
| 賃料/管理費 | -- (税別)/114,000円 (税別) | フリーレント | 0ヶ月 |
|---|---|---|---|
| 敷金/礼金 | 6ヶ月/0ヶ月 | 内見・入居 | 相談 |
| 間取り | 事務所 | 面積 | 125.62m² |
| 所在階 | 地上2階 | 最大スペース | |
| 住所 | 東京都中央区日本橋小伝馬町6番13号 | 最寄駅 | 東京メトロ日比谷線「小伝馬町」駅徒歩3分 JR山手線「神田」駅徒歩8分 都営新宿線「馬喰横山」駅徒歩7分 |
| その他交通 | JR総武線快速「新日本橋」駅5分 | 築年月 | 1989年01月 |
| 方角 | 構造 | 鉄骨構造(S造) 7階建 | |
| 契約期間 | その他 | 契約形態 | 定期借家 |
| 償却 | 1ヶ月 | 設備 | エレベーター , OAフロア |
| 更新料 | 0ヶ月 | 更新日 | 2025年09月11日 |
| 備考 | |||



お問い合わせの際は、「部屋No.49150」とお伝えください。





























1989年竣工、スモーキーカラーのガラス張りの建物。新耐震基準をクリアしています。
1フロア1テナント利用で、EVホールに男女別のトイレがあり、余計な柱のない貸室内は効率よくレイアウトをすることが可能です。
周辺は落ち着いたオフィス街ですので、店舗は少なめ。神田駅近辺には多くの飲食店があります。