推奨利用人数
7人~8人
【成約済み】第19大協ビル 6階
- 所在地:東京都港区新橋5丁目9番7号
- 交通:JR山手線「新橋」駅徒歩6分
- 交通2:都営三田線「御成門」駅徒歩7分
- 交通3:都営大江戸線「汐留」駅徒歩8分
| 賃料:-- (税別) | 管理費:20,000円 (税別) |
| 敷金:3ヶ月- | 礼金:0ヶ月 |
| 面積:50.58m² | 所在階:地上6階 |
| 間取り:事務所 | 築年月:1985年04月 |
| 賃料/管理費 | -- (税別)/20,000円 (税別) | フリーレント | 0ヶ月 |
|---|---|---|---|
| 敷金/礼金 | 3ヶ月/0ヶ月 | 内見・入居 | 内見可 |
| 間取り | 事務所 | 面積 | 50.58m² |
| 所在階 | 地上6階 | 最大スペース | |
| 住所 | 東京都港区新橋5丁目9番7号 | 最寄駅 | JR山手線「新橋」駅徒歩6分 都営三田線「御成門」駅徒歩7分 都営大江戸線「汐留」駅徒歩8分 |
| その他交通 | 築年月 | 1985年04月 | |
| 方角 | 構造 | 鉄筋コンクリート造(RC造) 7階建 | |
| 契約期間 | 2年間 | 契約形態 | 普通借家 |
| 償却 | 0ヶ月 | 設備 | エレベーター |
| 更新料 | 0ヶ月 | 更新日 | 2025年09月11日 |
| 備考 | |||



お問い合わせの際は、「部屋No.49187」とお伝えください。





























1985年竣工、白い外壁に小さなバルコニーがある建物です。新橋柳通り沿い角地に立地しています。
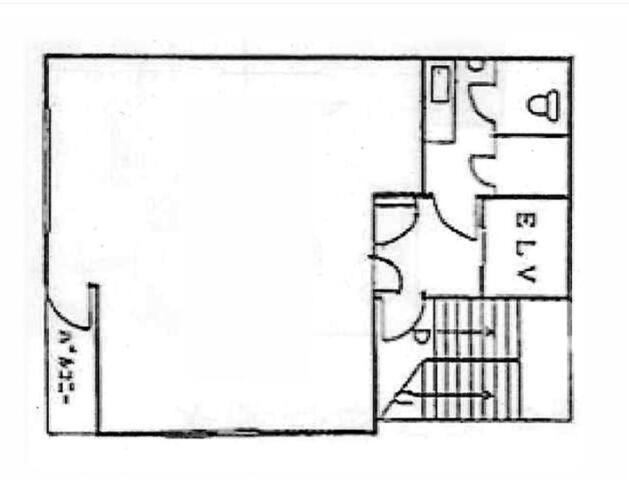
1フロア1テナント利用、室外に専用のトイレと給湯室がありますので貸室内は効率よくレイアウトすることができます。新橋駅と御成門駅のちょうど中間あたりに立地しておりますので、複数の路線が利用できアクセスも便利です。
周辺は飲食店が多くランチには困りません!コンビニやコインパーキングも近くにありますので利便性も良好です!