推奨利用人数
9人~10人
【成約済み】ノルン秋葉原ビル 3階
- 所在地:東京都千代田区神田須田町2丁目13番1号
- 交通:都営新宿線「岩本町」駅徒歩1分
- 交通2:JR山手線「秋葉原」駅徒歩3分
- 交通3:東京メトロ銀座線「神田」駅徒歩6分
| 賃料:相談 (税別) | 管理費:相談 (税別) |
| 敷金:相談- | 礼金:0ヶ月 |
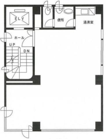
| 面積:63.27m² | 所在階:地上3階 |
| 間取り:事務所 | 築年月:1990年06月 |
| 賃料/管理費 | 相談 (税別)/相談 (税別) | フリーレント | 0ヶ月 |
|---|---|---|---|
| 敷金/礼金 | 相談/0ヶ月 | 内見・入居 | 内見可 |
| 間取り | 事務所 | 面積 | 63.27m² |
| 所在階 | 地上3階 | 最大スペース | |
| 住所 | 東京都千代田区神田須田町2丁目13番1号 | 最寄駅 | 都営新宿線「岩本町」駅徒歩1分 JR山手線「秋葉原」駅徒歩3分 東京メトロ銀座線「神田」駅徒歩6分 |
| その他交通 | 築年月 | 1990年06月 | |
| 方角 | 構造 | 鉄筋コンクリート造(RC造) 6階建 | |
| 契約期間 | 2年間 | 契約形態 | 普通借家 |
| 償却 | 2ヶ月 | 設備 | エレベーター |
| 更新料 | 1ヶ月 | 更新日 | 2025年09月11日 |
| 備考 | ・条件によりOAフロア設置相談可能(オーナー負担) | ||



お問い合わせの際は、「部屋No.49194」とお伝えください。





























1990年竣工のオフィスビル、白タイル張りのシンプルな外観の建物です。新耐震基準をクリアしています。1階には飲食店がありますので目印になります。
1フロア約20坪、室内にトイレと給湯室があり使い勝手も良好です。土日祝使用可能ですので様々なワークスタイルに対応可能!
個別空調 エレベーター1基 天井高:2450mm