推奨利用人数
20人~24人
【成約済み】GINZA EAST SQUARE 7階+上階
- 所在地:東京都中央区京橋3丁目12番7号
- 交通:都営浅草線「宝町」駅徒歩1分
- 交通2:東京メトロ日比谷線「八丁堀」駅徒歩6分
- 交通3:東京メトロ銀座線「京橋」駅徒歩5分
| 賃料:相談 (税別) | 管理費:相談 (税別) |
| 敷金:6ヶ月- | 礼金:0ヶ月 |
| 面積:147.5m² | 所在階:地上7階 |
| 間取り:事務所 | 築年月:1984年01月 |
| 賃料/管理費 | 相談 (税別)/相談 (税別) | フリーレント | 0ヶ月 |
|---|---|---|---|
| 敷金/礼金 | 6ヶ月/0ヶ月 | 内見・入居 | 内見可 |
| 間取り | 事務所 | 面積 | 147.5m² |
| 所在階 | 地上7階 | 最大スペース | |
| 住所 | 東京都中央区京橋3丁目12番7号 | 最寄駅 | 都営浅草線「宝町」駅徒歩1分 東京メトロ日比谷線「八丁堀」駅徒歩6分 東京メトロ銀座線「京橋」駅徒歩5分 |
| その他交通 | 築年月 | 1984年01月 | |
| 方角 | 構造 | 鉄骨鉄筋コンクリート造(SRC造) 8階建 | |
| 契約期間 | 2年間 | 契約形態 | 普通借家 |
| 償却 | 0ヶ月 | 設備 | エレベーター |
| 更新料 | 0ヶ月 | 更新日 | 2025年09月11日 |
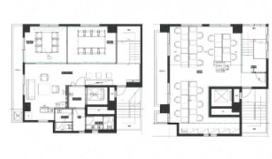
| 備考 | ・7+8階フロア | ||



お問い合わせの際は、「部屋No.49218」とお伝えください。





























1984年竣工のオフィスビル、薄い茶色のタイル張りの外観、新耐震基準をクリアした建物です。
2018年、内装をリノベーションし受付と会議室付のセットアップオフィスへと生まれ変わりました。
1フロア1テナント利用のオフィスには、専用の給湯室と男女別トイレがあり使い勝手も良好。OA床や個別空調、機械警備など設備面も大変充実しています。
周辺はビジネスホテルや飲食店などが点在し、昭和通りまで出れば銀行やコンビニもあり便利です。