推奨利用人数
20人~24人
【成約済み】シントクビル 3階
- 所在地:東京都港区芝3丁目14番6号
- 交通:都営大江戸線「赤羽橋」駅徒歩3分
- 交通2:都営三田線「芝公園」駅徒歩5分
- 交通3:JR山手線「田町」駅徒歩10分
| 賃料:-- (税別) | 管理費:0円 (税別) |
| 敷金:6ヶ月- | 礼金:0ヶ月 |
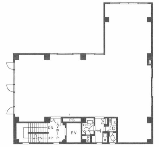
| 面積:149.69m² | 所在階:地上3階 |
| 間取り:事務所 | 築年月:1993年10月 |
| 賃料/管理費 | -- (税別)/0円 (税別) | フリーレント | 0ヶ月 |
|---|---|---|---|
| 敷金/礼金 | 6ヶ月/0ヶ月 | 内見・入居 | 内見可 |
| 間取り | 事務所 | 面積 | 149.69m² |
| 所在階 | 地上3階 | 最大スペース | |
| 住所 | 東京都港区芝3丁目14番6号 | 最寄駅 | 都営大江戸線「赤羽橋」駅徒歩3分 都営三田線「芝公園」駅徒歩5分 JR山手線「田町」駅徒歩10分 |
| その他交通 | 築年月 | 1993年10月 | |
| 方角 | 構造 | 鉄筋コンクリート造(RC造) 5階建 | |
| 契約期間 | 2年間 | 契約形態 | 普通借家 |
| 償却 | 1ヶ月 | 設備 | エレベーター , OAフロア |
| 更新料 | 1ヶ月 | 更新日 | 2025年09月11日 |
| 備考 | |||



お問い合わせの際は、「部屋No.49220」とお伝えください。





























白いタイル張りの外観 新耐震基準の賃貸ビルです
1階は駐車場になっています
天井高2500mm、男女別トイレ、OAフロア、セキュリティ設備あり