推奨利用人数
20人~24人
【成約済み】アミノ酸会館ビル 1階
- 所在地:東京都中央区日本橋3丁目15番8号
- 交通:東京メトロ銀座線「日本橋」駅徒歩5分
- 交通2:JR山手線「東京」駅徒歩6分
- 交通3:東京メトロ日比谷線「茅場町」駅徒歩6分
| 賃料:-- (税別) | 管理費:115,975円 (税別) |
| 敷金:10ヶ月- | 礼金:0ヶ月 |
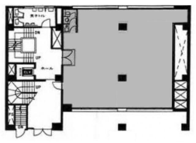
| 面積:153.36m² | 所在階:地上1階 |
| 間取り:事務所 | 築年月:1965年05月 |
| 賃料/管理費 | -- (税別)/115,975円 (税別) | フリーレント | 0ヶ月 |
|---|---|---|---|
| 敷金/礼金 | 10ヶ月/0ヶ月 | 内見・入居 | 内見可 |
| 間取り | 事務所 | 面積 | 153.36m² |
| 所在階 | 地上1階 | 最大スペース | |
| 住所 | 東京都中央区日本橋3丁目15番8号 | 最寄駅 | 東京メトロ銀座線「日本橋」駅徒歩5分 JR山手線「東京」駅徒歩6分 東京メトロ日比谷線「茅場町」駅徒歩6分 |
| その他交通 | 築年月 | 1965年05月 | |
| 方角 | 構造 | 鉄骨鉄筋コンクリート造(SRC造) 9階建 | |
| 契約期間 | その他 | 契約形態 | 定期借家 |
| 償却 | 0ヶ月 | 設備 | エレベーター , OAフロア |
| 更新料 | 0ヶ月 | 更新日 | 2025年09月11日 |
| 備考 | |||



お問い合わせの際は、「部屋No.49223」とお伝えください。





























アミノ酸会館ビルは1965年竣工の歴史のあるオフィスビル、2014年に耐震補強工事を実施済みですので安心してご利用いただけます。
昭和通りから1本入った場所に立地していますので、比較的落ち着いた周辺環境です。
1フロア1テナント利用のオフィスには、男女別トイレや給湯設備がフロア専用であり、使い勝手も良好です。
機械警備完備、光ファイバー、OAフロアなど設備面も充実しています。
すぐそばの昭和通り沿いには、コンビニや飲食店も多くあり利便性も良好です。建物内に約50名利用可能な貸会議室があります。