推奨利用人数
30人~39人
【成約済み】苔香園ビル(タイコウエンビル) 5階
- 所在地:東京都港区芝公園1丁目3番8号
- 交通:都営三田線「御成門」駅徒歩3分
- 交通2:都営大江戸線「大門」駅徒歩6分
- 交通3:JR山手線「浜松町」駅徒歩11分
| 賃料:-- (税別) | 管理費:240,110円 (税別) |
| 敷金:6ヶ月- | 礼金:0ヶ月 |
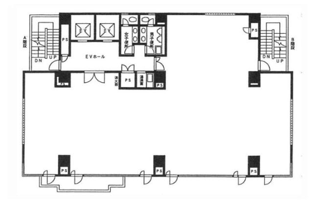
| 面積:244.23m² | 所在階:地上5階 |
| 間取り:事務所 | 築年月:1987年11月 |
| 賃料/管理費 | -- (税別)/240,110円 (税別) | フリーレント | 0ヶ月 |
|---|---|---|---|
| 敷金/礼金 | 6ヶ月/0ヶ月 | 内見・入居 | 内見可 |
| 間取り | 事務所 | 面積 | 244.23m² |
| 所在階 | 地上5階 | 最大スペース | |
| 住所 | 東京都港区芝公園1丁目3番8号 | 最寄駅 | 都営三田線「御成門」駅徒歩3分 都営大江戸線「大門」駅徒歩6分 JR山手線「浜松町」駅徒歩11分 |
| その他交通 | 東京メトロ日比谷線「神谷町」駅11分 | 築年月 | 1987年11月 |
| 方角 | 構造 | 鉄骨鉄筋コンクリート造(SRC造) 8階建 | |
| 契約期間 | 2年間 | 契約形態 | 普通借家 |
| 償却 | 1ヶ月 | 設備 | エレベーター , OAフロア |
| 更新料 | 1ヶ月 | 更新日 | 2025年09月11日 |
| 備考 | ・エントランス開閉時間:正面入口6:00~20:00(時間外は通用口を使用可能) | ||



お問い合わせの際は、「部屋No.49276」とお伝えください。





























1987年竣工、白いタイル張りの外観の清潔感のあるオフィスです。日比谷通りから一本中に入った比較的落ち着いた周辺環境のオフィスです。
建物にはEV2基。1フロア1テナント利用のオフィスはEVホールに男女別のトイレと給湯室を完備しており貸室内は効率よくレイアウトすることが可能です。セキュリティは機械警備を完備しておりますので安心して24時間利用可能です。
駅周辺には飲食店も多くありますので、利便性も良好です!